本町 店舗

中阪 浩之ナカサカ ヒロユキ
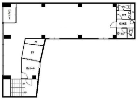
「立売堀木津ビル」は、大阪市西区立売堀1丁目にございます賃貸事務所。
四ツ橋筋の東側沿い、西本町エリアに位置する10階建て。
広さ約35坪のワンフロア貸し。
L字型形状の貸室は、面白いレイアウトが組めそうな予感。
独立性が確保されたビジネス空間は、音モレの心配もなく、また、大通りに面しているので視認性が高く、来店型オフィスや営業会社のオフィスにオススメです。
大阪市営地下鉄四つ橋線の「本町駅」より徒歩2分。
御堂筋線や中央線へも徒歩圏内、本町や心斎橋など御堂筋エリアへのアクセスも良い、ビジネス拠点です。
同じビルの 貸室情報
| 種別 | 店舗 |
|---|---|
| 住所 | 大阪市西区立売堀1 |
| 最寄駅 | 四ツ橋線 『
本町 』
2 分
御堂筋線 『 本町 』 9 分 中央線 『 本町 』 10 分 |
| 構造 | 鉄骨鉄筋コンクリート造 10階建 |
| 築年数 | 1989/5 【新耐震基準】 |
| 設備
|
|
営業マンの一言 美容室店舗跡です。大阪メトロ四ツ橋線 本町駅徒歩2分 四ツ橋筋に面したワンフロア貸事務所!賃料、ロープライスに設定。グレードも良 ■エステ・美容室・クリニック向き■各種教室向き |
|

※取引態様:仲介
※上記、金額は募集条件です。 条件交渉など、詳細についてはお問合せ下さい。
※広告作成中に契約済みの場合はご容赦下さい。
※図面等現況が相違する場合は現況優先にてご容赦下さい。
本町 店舗の所在地周辺
物件を再検索する
近隣のよく似た坪数の貸事務所
-
JLビル
大阪市西区阿波座1
四ツ橋線「本町」徒歩1分
30.0坪 -
カーニープレイス本町ビル
大阪市西区阿波座1
四ツ橋線「本町」徒歩1分
38.69坪 -
大槻ビル
大阪市西区阿波座1
四ツ橋線「本町」徒歩2分
30.0坪 -
西本町中央ビル
大阪市西区阿波座1
四ツ橋線「本町」徒歩3分
32.94坪 -
NANKAI西本町ビル
大阪市西区阿波座2
四ツ橋線「本町」徒歩6分
34.18坪 -
中井産業ビル2号館
大阪市西区立売堀1
四ツ橋線「本町」徒歩3分
34.72坪 -
HOWA ビル
大阪市西区立売堀1
四ツ橋線「本町」徒歩5分
32.82坪 -
ビジネスゾーン本町西
大阪市西区立売堀2
四ツ橋線「本町」徒歩6分
37.12坪 -
DGビルなにわ筋
大阪市西区立売堀2
四ツ橋線「本町」徒歩7分
32.98坪 -
日東ビル
大阪市西区立売堀2
四ツ橋線「本町」徒歩6分
33.67坪


















