ビジネスゾーン北堀江ビル

堀中 忠久ホリナカ タダヒサ
「ビジネスゾーン北堀江ビル」は、大阪市西区北堀江2丁目にございます、賃貸事務所ビルです。
大阪市営地下鉄・長堀鶴見緑地線の「西大橋駅」③番出入口より徒歩1分。
四つ橋線の「四ツ橋駅」からも徒歩5分の交通アクセス。
便利なロケーションでありながら、落ち着いた、静かな環境です
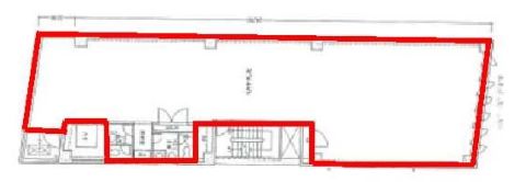
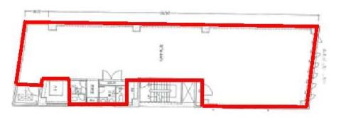
ワンフロア面積が約50坪の9階建、平成4年築・新耐震構造の綺麗なビル。
居住用建物が多い周辺に合わせた、オシャレな外観で、街並みとの調和もバッチリ。
アパレル業などのオフィスにおすすめです。
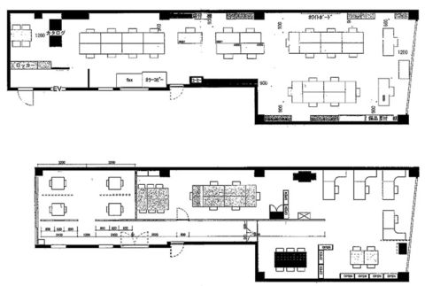
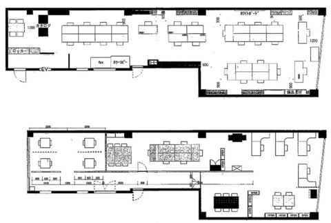
貸室は、約50坪のワンフロア・ワンテナント貸し。
ゆとりある広さですので、サンプル展示やストック置きが必要な業種様でも、安心。
ワンフロアのメリットは、独立性・機密性が確保されていること。
デメリットは、契約面積にトイレや給湯室の水廻り部分を含んでいるので、オフィスとしての有効面積が少なくなること。
「ビジネスゾーン北堀江ビル」でも、トイレ等水廻り部分で約3.7坪ほど含みます。
| 種別 | 貸事務所 |
|---|---|
| 物件名 | ビジネスゾーン北堀江ビル |
| 住所 | 大阪市西区北堀江2-2-17 |
| 最寄駅 | 長堀鶴見緑地線 『
西大橋 』
1 分
四ツ橋線 『 四ツ橋 』 5 分 |
| 構造 | 鉄骨鉄筋コンクリート造 9階建 |
| 築年数 | 1992/3 【新耐震基準】 |
| 設備
|
|
営業マンの一言 堀江のワンフロア貸しテナントビル。西大橋駅1分の美築ローコスト&ワンフロアビル。来店型も相談可能 「グレードも良く激安価格に相談可!」 |
|

※取引態様:仲介
※上記、金額は募集条件です。 条件交渉など、詳細についてはお問合せ下さい。
※広告作成中に契約済みの場合はご容赦下さい。
※図面等現況が相違する場合は現況優先にてご容赦下さい。
ビジネスゾーン北堀江ビルの所在地周辺
物件を再検索する
近隣のよく似た坪数の貸事務所
-
四ツ橋グランスクエア
大阪市西区新町1
長堀鶴見緑地線「西大橋」徒歩1分
58.02坪 -
Kay ビル
大阪市西区新町1
長堀鶴見緑地線「西大橋」徒歩3分
53.96坪 -
なにわ筋ファーストビル
大阪市西区新町1
長堀鶴見緑地線「西大橋」徒歩3分
51.21坪






















