上村ニッセイビル

営業スタッフ紹介
中阪 浩之ナカサカ ヒロユキ
| 種別 | 貸事務所 |
|---|---|
| 物件名 | 上村ニッセイビル |
| 住所 | 大阪市淀川区宮原3-3-31 |
| 最寄駅 | 御堂筋線 『
新大阪 』
3 分
東海道本線 『 新大阪 』 5 分 |
| 構造 | 鉄骨鉄筋コンクリート造 20階建 /地下 2 階 |
| 築年数 | 1993/1 【新耐震基準】 |
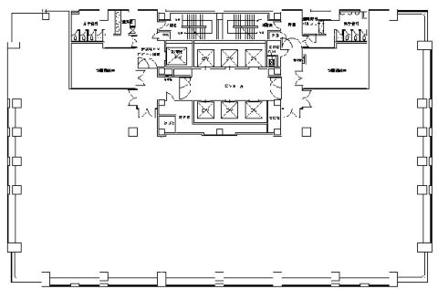
| 設備
|
|
営業マンの一言 新大阪ランドマークビル |
|
| 備考 | 貸し会議室 |

※取引態様:仲介
※上記、金額は募集条件です。 条件交渉など、詳細についてはお問合せ下さい。
※広告作成中に契約済みの場合はご容赦下さい。
※図面等現況が相違する場合は現況優先にてご容赦下さい。
上村ニッセイビルの所在地周辺
物件を再検索する
近隣のよく似た坪数の貸事務所
-
辰野新大阪ビル
大阪市淀川区西中島7
御堂筋線「新大阪」徒歩3分
174.04坪



















