堂島アクシスビル

中阪 浩之ナカサカ ヒロユキ
「堂島アクシスビル」は、大阪市北区堂島浜2丁目にございます、賃貸事務所ビル。
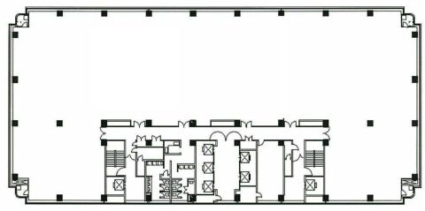
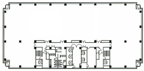
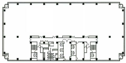
基準階面積が約380坪、地下2階・地上15階建ての大阪・堂島のランドマークオフィス。
京阪電鉄中之島線「渡辺橋」駅徒歩4分、JR東西線「北新地」駅徒歩5分、大阪市営地下鉄四つ橋線「西梅田」駅または「肥後橋」駅より徒歩6分、他各線の梅田駅・大阪駅が徒歩圏内の好アクセス。
貸室面積はバリエーションが多く、テナント様ご希望の広さが見つかるハズ。お気軽に、ご相談ください。
ハイグレードなビルスペックに、館内にはコンビニ・駐輪場・駐車場と充実した環境が整い、快適なオフィスワークが確保されています。
2013年には、エレベーターホールや廊下、トイレなど共用部分のリニューアルが完了。
ますます魅力的なオフィス空間に仕上がりました。
水の都・大阪を伝える“堂島”は、かつては各藩の蔵屋敷が並び、現在は大型のオフィスビルが建ち並ぶ、緑とリバービューが心地よいビジネス街。
ここ「堂島アクシスビル」を拠点とするステータスが、ビジネスを強力にサポートしてくれます。
堂島アクシスビル 貸室情報
| 種別 | 貸事務所 |
|---|---|
| 物件名 | 堂島アクシスビル |
| 住所 | 大阪市北区堂島浜2-2-28 |
| 最寄駅 | 四ツ橋線 『
西梅田 』
7 分
四ツ橋線 『 肥後橋 』 7 分 御堂筋線 『 梅田 』 10 分 |
| 構造 | 鉄骨鉄筋コンクリート造 15階建 /地下 2 階 |
| 築年数 | 1991/9 【新耐震基準】 |
| 設備
|
|
営業マンの一言 堂島エリアのハイグレードオフィスビル。全館リニューアル済み、100坪から分割対応可能です。諸条件お問合せください。堂島エリア 大型ビル 大阪メトロ四ツ橋線 西梅田駅徒歩7分 大阪メトロ御堂筋線 梅田駅、肥後橋駅、北新地駅利用可能 堂島地下街至近 緑とリバービューが心地よい堂島のランドマーク賃貸オフィスビルです。 |
|
| 備考 | オートロック |

※取引態様:仲介
※上記、金額は募集条件です。 条件交渉など、詳細についてはお問合せ下さい。
※広告作成中に契約済みの場合はご容赦下さい。
※図面等現況が相違する場合は現況優先にてご容赦下さい。
堂島アクシスビルの所在地周辺
物件を再検索する
近隣のよく似た坪数の貸事務所
-
FOODEARビル
大阪市北区曾根崎新地1
四ツ橋線「西梅田」徒歩1分
98.0坪 -
堂島グランドビル
大阪市北区堂島1
四ツ橋線「西梅田」徒歩3分
99.17坪 -
堂島アバンザビル
大阪市北区堂島1
四ツ橋線「西梅田」徒歩2分
97.0坪 -
JPR堂島ウエスト(旧:大阪堂島)
大阪市北区堂島2
四ツ橋線「西梅田」徒歩5分
93.18坪 -
アクア堂島NBFタワー
大阪市北区堂島浜1
四ツ橋線「西梅田」徒歩4分
99.25坪


































