西梅田 店舗・事務所 B1階-No.43076
堀中 忠久ホリナカ タダヒサ
当該ビルの豆知識
「堂島アクシスビル」は、大阪市北区堂島浜2丁目にございます、賃貸事務所ビル。
基準階面積が約380坪、地下2階・地上15階建ての大阪・堂島のランドマークオフィス。
京阪電鉄中之島線「渡辺橋」駅徒歩4分、JR東西線「北新地」駅徒歩5分、大阪市営地下鉄四つ橋線「西梅田」駅または「肥後橋」駅より徒歩6分、他各線の梅田駅・大阪駅が徒歩圏内の好アクセス。
貸室面積はバリエーションが多く、テナント様ご希望の広さが見つかるハズ。お気軽に、ご相談ください。
ハイグレードなビルスペックに、館内にはコンビニ・駐輪場・駐車場と充実した環境が整い、快適なオフィスワークが確保されています。
2013年には、エレベーターホールや廊下、トイレなど共用部分のリニューアルが完了。
ますます魅力的なオフィス空間に仕上がりました。
水の都・大阪を伝える“堂島”は、かつては各藩の蔵屋敷が並び、現在は大型のオフィスビルが建ち並ぶ、緑とリバービューが心地よいビジネス街。
ここ「堂島アクシスビル」を拠点とするステータスが、ビジネスを強力にサポートしてくれます。
西梅田 店舗・事務所 基本情報
| 種別 | 店舗・事務所(物件番号:43076) |
|---|---|
| 物件名 | 西梅田 店舗・事務所
地下店舗・業種ご相談ください。 |
| 住所 | 大阪市北区堂島浜2 |
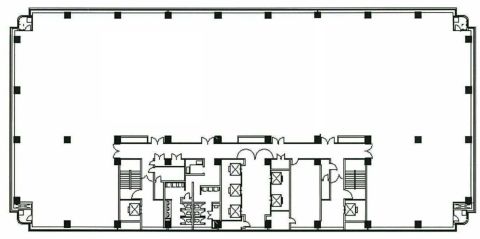
| 所在階 | B1階部分号室 その他、貸室 |
| 契約面積 | 35.88 坪・ 118.62 ㎡ |
| 賃料 | お電話・メールにてお問合下さい。 |
| 共益費 | お電話・メールにてお問合下さい。 |
| 月額合計 | お電話・メールにてお問合下さい。 |
| 保証金 | お電話・メールにてお問合下さい。 |
| 最寄駅 |
四ツ橋線 『
西梅田 』
7 分
四ツ橋線 『 肥後橋 』 7 分 御堂筋線 『 梅田 』 10 分 |
| 構造 | 鉄骨鉄筋コンクリート造 15階建 /地下 2 階 |
| 築年数 | 1991/9 【新耐震基準】 |
| 設備
|
|
| エレベーター | 7基 |
営業マンの一言 堂島エリア 大型ビル大阪メトロ四ツ橋線 西梅田駅徒歩7分 大阪メトロ御堂筋線 梅田駅、肥後橋駅、北新地駅利用可能 堂島地下街至近 緑とリバービューが心地よい堂島のランドマーク賃貸オフィスビルです。 ■エステ・美容室・クリニック向き■飲食店舗向き■物販向き |
|
| 備考 | オートロック |

※取引態様:仲介
※上記、金額は募集条件です。 条件交渉など、詳細についてはお問合せ下さい。
※広告作成中に契約済みの場合はご容赦下さい。
※図面等現況が相違する場合は現況優先にてご容赦下さい。
西梅田 店舗・事務所の所在地周辺
同じビルの その他の部屋情報
物件を再検索する
西梅田 店舗・事務所 関連物件
西梅田 店舗・事務所 近隣のよく似た坪数の貸事務所
-
西梅田ビル
大阪市北区梅田2
四ツ橋線「西梅田」徒歩2分
30.0坪 -
レイズウメダビル
大阪市北区梅田2
四ツ橋線「西梅田」徒歩1分
31.17坪 -
阪神産経桜橋ビル
大阪市北区梅田2
四ツ橋線「西梅田」徒歩1分
30.4坪 -
千代田ビル西館
大阪市北区梅田2
四ツ橋線「西梅田」徒歩2分
37.47坪 -
グラングリーン大阪パークタワー
大阪市北区大深町
四ツ橋線「西梅田」徒歩1分
34.82坪 -
京富ビル
大阪市北区曾根崎新地1
四ツ橋線「西梅田」徒歩1分
36.72坪 -
堂島TSSビル
大阪市北区曾根崎新地2
四ツ橋線「西梅田」徒歩2分
36.52坪 -
GUILD(ギルド)
大阪市北区曾根崎新地2
四ツ橋線「西梅田」徒歩4分
35.0坪 -
MF桜橋ビル
大阪市北区曾根崎新地2
四ツ橋線「西梅田」徒歩2分
33.26坪 -
フェザー堂島ビル
大阪市北区堂島1
四ツ橋線「西梅田」徒歩2分
38.2坪







































