西天満パークビル3号館

堀中 忠久ホリナカ タダヒサ
「西天満パークビル3号館」は、大阪市北区西天満3丁目にございます、賃貸事務所。
国道1号線(曽根崎通り)に面した、地下1階地上10階建て。
西天満の交差点よりスグ、御影石貼り外観が美しい、堂々とした風格ある大型オフィスビルです。
1970年築、2009年には外壁・共用部のリニューアルに加え、耐震改修工事も完了し、新耐震基準に適合しています。
エレベーター2基、個別空調、24時間機械警備システム、男女別シャワートイレ、B1には車椅子対応トイレ、ハイルーフ対応駐車場、駐輪場、喫煙ルームと、充実のビルスペック。
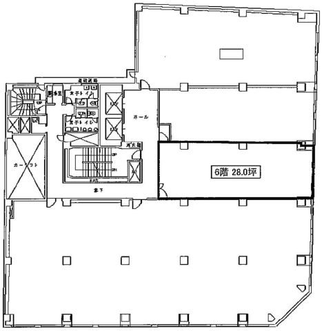
貸室は、基準階面積約217坪。
20坪台からの分割対応も可能、また地下には貸倉庫もございます。
OAフロアと角地の2面採光による明るい室内は、快適なオフィススペースが確保されています。
大阪市営地下鉄谷町線・堺筋線の「南森町駅」徒歩5分。JR東西線の「大阪天満宮駅」徒歩6分の交通至便。
また、各線梅田駅も徒歩圏内と、便利なアクセスです。
西天満パークビル3号館 貸室情報
| 種別 | 貸事務所 |
|---|---|
| 物件名 | 西天満パークビル3号館 |
| 住所 | 大阪市北区西天満3-14-16 |
| 最寄駅 | 堺筋線 『
南森町 』
4 分
谷町線 『 南森町 』 4 分 |
| 構造 | 鉄骨鉄筋コンクリート造 10階建 /地下 1 階 |
| 築年数 | 1970/9 (リニューアル: 2009/3 ) |
| 設備
|
|
営業マンの一言 西天満交差点スグ!視認性の高い賃貸事務所ビル大阪メトロ堺筋線・谷町線 南森町駅徒歩圏内 裁判所至近 2号線面す大型ビル 管理良好、耐震補強&全館リニューアル済! |
|
| 備考 | 免震・耐震補強/貸し会議室/リフレッシュルーム |

※取引態様:仲介
※上記、金額は募集条件です。 条件交渉など、詳細についてはお問合せ下さい。
※広告作成中に契約済みの場合はご容赦下さい。
※図面等現況が相違する場合は現況優先にてご容赦下さい。
西天満パークビル3号館の所在地周辺
入居テナント
物件を再検索する
近隣のよく似た坪数の貸事務所
-
フジビル2
大阪市北区南森町1
堺筋線「南森町」徒歩2分
28.39坪 -
天神橋R&Tビル
大阪市北区菅原町
堺筋線「南森町」徒歩6分
28.96坪 -
千代田第二ビル
大阪市北区天神橋2
堺筋線「南森町」徒歩2分
27.01坪 -
盛岡 ビル
大阪市北区天神橋2
堺筋線「南森町」徒歩1分
30.0坪 -
南森町イシカワビル
大阪市北区天神橋3
堺筋線「南森町」徒歩3分
26.41坪 -
第2東寺町ビル
大阪市北区同心1
堺筋線「南森町」徒歩8分
25.1坪 -
オフィスポート大阪
大阪市北区西天満3
堺筋線「南森町」徒歩3分
26.58坪 -
NISHITENMA GTC BLDG(旧:リアライズ西天満)
大阪市北区西天満3
堺筋線「南森町」徒歩5分
26.88坪 -
北ビル2号館
大阪市北区西天満4
堺筋線「南森町」徒歩9分
26.02坪 -
西天満パークビル2号館
大阪市北区西天満5
堺筋線「南森町」徒歩3分
29.0坪





















