南森町 貸店舗

営業スタッフ紹介
堀中 忠久ホリナカ タダヒサ
当該ビルの豆知識
「新日本曽根崎ビル」は、大阪市北区西天満5丁目にございます、賃貸事務所ビル。
曽根崎通り(国道1号線)に面した角ビルで、視認性の高い建物です。
大阪市営地下鉄谷町線・堺筋線の「南森町駅」より徒歩2分、JR東西線の「大阪天満宮駅」より徒歩4分ですが、曽根崎通を西へ進めば、「北新地駅」まで8分、谷町線の「東梅田駅」まで10分で歩くことが可能。
そうです!梅田エリアが、徒歩圏内の好ロケーション。
阪神高速出入口も近くにございますので、車のアクセスも良好。
大阪市内だけでなく、近郊都市へのフットワークも良く、梅田エリアと比較すると賃貸条件も割安感があり、ビジネス拠点としておすすめの賃貸物件です。
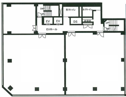
ワンフロアの面積は約200坪ほどございますが、20坪~の分割したフロアもございます。
角ビルのため、小規模の貸室でも、自然採光を確保でき、明るく・快適なオフィス空間です。
リニューアルもしており、エレベーター2基、個別空調、機械警備、男女別シャワートイレ、駐車場併設と、ビルスペックも充実しております。
OAフロア未対応のお部屋は、ご相談できます。但し、あまり天井高がございませんので、現地をご確認の上、ご相談くださいませ。
同じビルの 貸室情報
| 階 | 号室 | 坪数 | ㎡数 | 賃料 | 共益費 | 敷金 | |
|---|---|---|---|---|---|---|---|
| 5階 | 74.03坪 | 244.73㎡ | 429,374 円 | 148,060 円 | 6ヶ月 | ![]() |
|
| 8階 | 61.56坪 | 203.51㎡ | 357,048 円 | 123,120 円 | 6ヶ月 | ![]() |
|
| 8階 | 2A | 61.56坪 | 203.51㎡ | 357,048 円 | 123,120 円 | 6ヶ月 | ![]() |
| 種別 | 貸店舗 |
|---|---|
| 住所 | 大阪市北区西天満5 |
| 最寄駅 | 堺筋線 『
南森町 』
2 分
東西線 『 大阪天満宮 』 4 分 谷町線 『 東梅田 』 10 分 |
| 構造 | 鉄骨鉄筋コンクリート造 9階建 /地下 1 階 |
| 築年数 | 1972/1 (リニューアル: 1998/01 ) |
| 設備
|
|
営業マンの一言 南森町エリア・リニューアル済貸しオフィス。大阪・国道1号線に面した視認性のある賃貸事務所ビルです。 |
|

※取引態様:仲介
※上記、金額は募集条件です。 条件交渉など、詳細についてはお問合せ下さい。
※広告作成中に契約済みの場合はご容赦下さい。
※図面等現況が相違する場合は現況優先にてご容赦下さい。


















