淀川6番館

淀川6番館 貸室情報
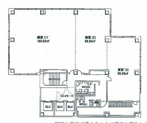
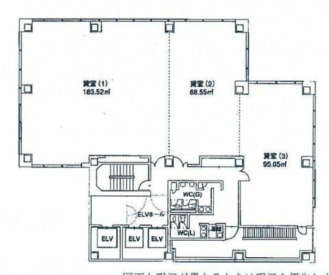
| 階 | 号室 | 坪数 | ㎡数 | 賃料 | 共益費 | 保証金 | |
|---|---|---|---|---|---|---|---|
| 3階 | 3 | 28.75坪 | 95.05㎡ | お電話・メールにて お問い合わせください。 | ![]() |
||
| 5階 | 2 | 27.12坪 | 89.66㎡ | お電話・メールにて お問い合わせください。 | ![]() |
||
| 13階 | 1303 | 28.75坪 | 95.05㎡ | お電話・メールにて お問い合わせください。 | ![]() |
||
| 種別 | 事務所 |
|---|---|
| 物件名 | 淀川6番館 |
| 住所 | 大阪市北区豊崎3-1-22 |
| 最寄駅 | 御堂筋線 『
中津 』
4 分
御堂筋線 『 梅田 』 7 分 |
| 構造 | 鉄骨造 14階建 /地下 1 階 |
| 築年数 | 1993/2 【新耐震基準】 |
| 設備
|
|
営業マンの一言 大阪メトロ御堂筋線 中津駅4分 梅田駅徒歩7分 豊崎エリア大通り沿いに面す視認性の高いハイグレード賃貸ビル。 |
|
| 備考 | オートロック |

※取引態様:仲介
※上記、金額は募集条件です。 条件交渉など、詳細についてはお問合せ下さい。
※広告作成中に契約済みの場合はご容赦下さい。
※図面等現況が相違する場合は現況優先にてご容赦下さい。
淀川6番館の所在地周辺
物件を再検索する
近隣のよく似た坪数の貸事務所
-
エイトビル
大阪市北区豊崎3
御堂筋線「中津」徒歩3分
49.7坪 -
シムラビル
大阪市北区豊崎5
御堂筋線「中津」徒歩2分
41.5坪 -
MINOYAビル(ミノヤ)
大阪市北区中津1
御堂筋線「中津」徒歩1分
45.0坪 -
中津第2リッチビル
大阪市北区中津1
御堂筋線「中津」徒歩1分
44.2坪





堀中 忠久







