I.S.O(アイ・エス・オービル)

中阪 浩之ナカサカ ヒロユキ
「I.S.O.BLDG(アイ・エス・オービル)」は、大阪市中央区淡路町2丁目にございます、賃貸事務所ビル。
大阪メトロ堺筋線の「北浜駅」より徒歩5分が最寄駅。他にも京阪本線の「北浜駅」、御堂筋線の「淀屋橋駅」と3WAYアクセスが可能な、フットワークの良いビジオス拠点です。
1990年築の9階建て。
スタイリッシュな外観が、オフィスワークのモチベーションをUPさせてくれます。
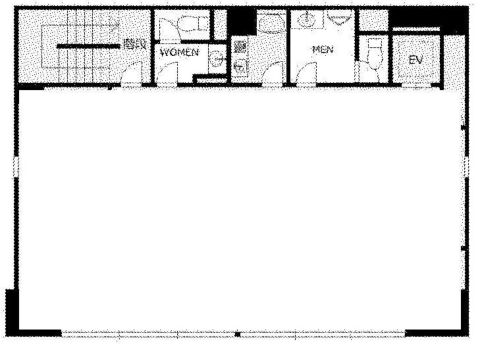
基準階面積が約40坪弱。
約半分の20坪前後に分割したプランもございます。
セキュリティ連動型のエレベーター、個別空調、男女別シャワートイレと、ビルスペックも整った、快適オフィス空間が提供されています。
北浜・淀屋橋界隈は、多くの企業の本社・支社が集まる大阪ビジネスの中心地。
それとともに、オシャレなカフェ・レストランから老舗店舗までが揃っており、円熟した街並みです。
I.S.O(アイ・エス・オービル) 貸室情報
| 種別 | 事務所 |
|---|---|
| 物件名 | I.S.O(アイ・エス・オービル) |
| 住所 | 大阪市中央区淡路町2-4-3 |
| 最寄駅 | 堺筋線 『
堺筋本町 』
6 分
堺筋線 『 北浜 』 5 分 御堂筋線 『 淀屋橋 』 8 分 |
| 構造 | S(鉄骨)造 9階建 |
| 築年数 | 1990/1 【新耐震基準】 |
| 設備
|
|
営業マンの一言 北浜エリアのスタイリッシュ賃貸事務所ビルです。御堂筋線、堺筋線利用可能なビジネス街の中心地 |
|

※取引態様:仲介
※上記、金額は募集条件です。 条件交渉など、詳細についてはお問合せ下さい。
※広告作成中に契約済みの場合はご容赦下さい。
※図面等現況が相違する場合は現況優先にてご容赦下さい。
I.S.O(アイ・エス・オービル)の所在地周辺
物件を再検索する
近隣のよく似た坪数の貸事務所
-
吉川産業ビル
大阪市中央区安土町1
堺筋線「堺筋本町」徒歩2分
27.3坪 -
ハウザー堺筋本町駅前ビル
大阪市中央区安土町2
堺筋線「堺筋本町」徒歩0.5分
30.0坪 -
淡路町イーストビル
大阪市中央区淡路町1
堺筋線「堺筋本町」徒歩7分
28.4坪 -
盛佳ビル
大阪市中央区瓦町1
堺筋線「堺筋本町」徒歩3分
28.13坪 -
瓦町恒和ビル
大阪市中央区瓦町1
堺筋線「堺筋本町」徒歩3分
29.43坪 -
三星RSビル
大阪市中央区久太郎町1
堺筋線「堺筋本町」徒歩4分
28.5坪 -
NTPR堺筋本町ビル
大阪市中央区久太郎町1
堺筋線「堺筋本町」徒歩3分
26.8坪 -
コーシンビル
大阪市中央区久太郎町1
堺筋線「堺筋本町」徒歩1分
27.0坪 -
LUCID SQUARE SEMBA(ルーシッドスクエアセンバ)
大阪市中央区久太郎町1
堺筋線「堺筋本町」徒歩1分
28.46坪 -
三星備後町ビル
大阪市中央区備後町1
堺筋線「堺筋本町」徒歩2分
29.0坪
























