七福ビル(淡路町七福ビル)

堀中 忠久ホリナカ タダヒサ
「淡路町七福ビル」は淡路町3丁目にある貸事務所です。
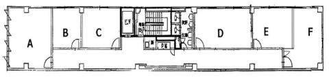
貸室面積約3坪から約8坪の小さい区画がワンフロアに6室あり、個人の方や新規開業の方に最適です。
賃貸条件面も、ランニングコスト(家賃・共益費など月々に必要となる費用)だけでなく、イニシャルコスト(貸室を借りるにあたり賃貸契約時に必要となる保証金や敷金・礼金などの初期費用)も、初めてオフィスを構える方には安心です。
一般的に賃貸オフィス契約時に必要な費用として最も金額が大きいものが、敷金又は保証金です。
賃料の滞納や室内の破損など、万一の時の為に預け入れるお金で、賃料の10ヶ月分~12ヶ月分が相場です。
敷金の場合は退去時に全額返還(但し、原状回復費用は別途掛ります)、保証金の場合は、敷引き金が引かれた残金が返還されます。(この場合、敷引き金が多くは原状回復費用に充当します)
いずれにしても、契約時に必要となる費用が大きくなることに違いはありませんが、「淡路町七福ビル」では、保証金を無くし、賃貸保証会社の加入を必須とすることで、入居者様の負担を軽減しています。
七福ビル(淡路町七福ビル) 貸室情報
| 種別 | 貸事務所 |
|---|---|
| 物件名 | 七福ビル(淡路町七福ビル) |
| 住所 | 大阪市中央区淡路町3-1-8 |
| 最寄駅 | 御堂筋線 『
本町 』
5 分
御堂筋線 『 淀屋橋 』 6 分 堺筋線 『 堺筋本町 』 8 分 |
| 構造 | 鉄骨造 7階建 |
| 築年数 | 1974/12 (リニューアル: 2014年 ) |
| 設備
|
|
営業マンの一言 大阪ビジネス街のスモール貸事務所。本町駅・淀屋橋駅の独立開業向けコンパクトオフィス!初期費用も安く賃料も交渉相談可”自転車置き場も設置しています。 |
|

※取引態様:仲介
※上記、金額は募集条件です。 条件交渉など、詳細についてはお問合せ下さい。
※広告作成中に契約済みの場合はご容赦下さい。
※図面等現況が相違する場合は現況優先にてご容赦下さい。
七福ビル(淡路町七福ビル)の所在地周辺
物件を再検索する
近隣のよく似た坪数の貸事務所
-
シルバービル(旧、第一シルバービル)
大阪市中央区安土町3
御堂筋線「本町」徒歩2分
7.5坪 -
トーア紡第2ビル(トーア紡第二ビル)
大阪市中央区淡路町3
御堂筋線「本町」徒歩5分
9.88坪 -
ドリーム瓦町ビル
大阪市中央区瓦町2
御堂筋線「本町」徒歩5分
9.22坪 -
フカキ瓦町ビル
大阪市中央区瓦町3
御堂筋線「本町」徒歩3分
8.5坪 -
マスザキヤ瓦町ビル
大阪市中央区瓦町4
御堂筋線「本町」徒歩4分
5.99坪 -
RE-017
大阪市中央区北久宝寺町2
御堂筋線「本町」徒歩7分
8.06坪 -
久宝ビル
大阪市中央区北久宝寺町4
御堂筋線「本町」徒歩3分
8.0坪 -
本町アーバンライフ
大阪市中央区北久宝寺町4
御堂筋線「本町」徒歩4分
8.63坪 -
丸忠第1ビル
大阪市中央区久太郎町3
御堂筋線「本町」徒歩1分
8.0坪 -
谷口悦第2ビル
大阪市中央区久太郎町3
御堂筋線「本町」徒歩1分
9.0坪






















