交徳ビル

中阪 浩之ナカサカ ヒロユキ
「交徳ビル」は、大阪市中央区内平野町2丁目にございます賃貸事務所。
ミラーウォールの美しい外観と、管理の行き届いた清潔感あふれる、6階建て賃貸オフィスビル。
大阪官公庁エリアの天満橋・谷4エリアにありながら、落ち着いたロケーションが魅力です。
さらにおすすめポイントは、ローコストな賃貸条件。
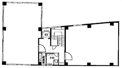
一区画約30坪のビジネススペースが、ワンフロアに2室。
ゆったりとしたオフィスワークを実現させてくれます。
大阪市営地下鉄谷町線・京阪本線の「天満橋駅」より徒歩6分の交通アクセスです。
交徳ビル 貸室情報
| 階 | 号室 | 坪数 | ㎡数 | 賃料 | 共益費 | 敷金 | |
|---|---|---|---|---|---|---|---|
| 2階 | 1 | 30.0坪 | 99.18㎡ | 195,000 円 | 賃料に含む | 214,500 円 | ![]() |
| 3階 | 1 | 30.0坪 | 99.18㎡ | 195,000 円 | 賃料に含む | 214,500 円 | ![]() |
| 3階 | 2 | 33.0坪 | 109.10㎡ | 214,500 円 | 賃料に含む | 235,950 円 | ![]() |
| 種別 | 事務所 |
|---|---|
| 物件名 | 交徳ビル |
| 住所 | 大阪市中央区内平野町2-2-17 |
| 最寄駅 | 谷町線 『
天満橋 』
6 分
谷町線 『 谷町四丁目 』 7 分 京阪本線 『 天満橋 』 6 分 |
| 構造 | 鉄筋コンクリート造 6階建 |
| 築年数 | 1973/1 (リニューアル: 2013/11 ) |
| 設備
|
|
営業マンの一言 2013年11月、リニュアル”賃料も格安お勧めです。共用部リニューアル済み・綺麗なオフィスです。 大阪天満橋のローコスト賃貸事務所 |
|

※取引態様:仲介
※上記、金額は募集条件です。 条件交渉など、詳細についてはお問合せ下さい。
※広告作成中に契約済みの場合はご容赦下さい。
※図面等現況が相違する場合は現況優先にてご容赦下さい。
交徳ビルの所在地周辺
物件を再検索する
近隣のよく似た坪数の貸事務所
-
天満橋MSビル
大阪市北区天満2
谷町線「天満橋」徒歩5分
27.29坪 -
肥後屋ビル
大阪市北区天満2
谷町線「天満橋」徒歩3分
29.6坪 -
合椎ビル
大阪市北区天満4
谷町線「天満橋」徒歩6分
28.0坪 -
第一DHビル
大阪市北区天満4
谷町線「天満橋」徒歩7分
28.94坪 -
アール天満橋
大阪市中央区内淡路町2
谷町線「天満橋」徒歩8分
29.19坪 -
サンビラ大手前ビル
大阪市中央区内平野町1
谷町線「天満橋」徒歩5分
27.52坪 -
日宝内平野町ビル
大阪市中央区内平野町1
谷町線「天満橋」徒歩5分
27.37坪 -
内平野中央ビル
大阪市中央区内平野町2
谷町線「天満橋」徒歩7分
27.17坪 -
リノ天満橋
大阪市都島区片町1
谷町線「天満橋」徒歩5分
26.22坪 -
リップル天満橋ビル
大阪市中央区大手前1
谷町線「天満橋」徒歩1分
26.5坪





























