長光寺ビル 2階-No.6801
長光寺ビル 基本情報
| 種別 | 貸事務所(物件番号:6801) |
|---|---|
| 物件名 | 長光寺ビル |
| 住所 | 大阪市中央区島町2-2-28 |
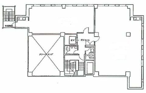
| 所在階 | 2階部分2号室 |
| 契約面積 | 31.92 坪・ 105.53 ㎡ |
| 賃料 | 総額
191,400 円 (税抜)・坪単価
5,996 円/坪 (税抜) 総額 210,540 円(税含む) |
| 共益費 | 総額 127,600 円 (税抜)・坪単価 3,997 円/坪 (税抜) 総額 140,360 円 (税含む) |
| 月額合計 | 総額 319,000 円(税抜)・坪単価 9,994 円(税抜) 総額 350,900 円 (税含む) |
| 敷金 | 1,276,000 円 |
| 礼金 | 708,101円(税含む) |
| 費用備考 | 賃貸保証加入要 |
| 最寄駅 | 谷町線 『 天満橋 』 4 分 |
| 構造 | 鉄筋コンクリート造 8階建 /地下 1 階 |
| 築年数 | 1994/4 【新耐震基準】 |
| 設備
|
|
| エレベーター | 1基 |
営業マンの一言 大阪メトロ谷町線、京阪各線「天満橋駅」より徒歩4分の好立地。重厚な外観で、近くに公園もあり静かなエリアです。天満橋エリアでオフィスをお探しの方は必見。 |
|

※取引態様:仲介
※上記、金額は募集条件です。 条件交渉など、詳細についてはお問合せ下さい。
※広告作成中に契約済みの場合はご容赦下さい。
※図面等現況が相違する場合は現況優先にてご容赦下さい。
長光寺ビルの所在地周辺
ストリートビューを表示▼
物件を再検索する
長光寺ビル 関連物件
長光寺ビル 近隣のよく似た坪数の貸事務所
-
天満松茂ビル
大阪市北区天満2
谷町線「天満橋」徒歩5分
33.71坪 -
グロー天満ビル
大阪市北区天満2
谷町線「天満橋」徒歩5分
39.52坪 -
交徳ビル
大阪市中央区内平野町2
谷町線「天満橋」徒歩6分
30.0坪 -
KS大手通
大阪市中央区大手通2
谷町線「天満橋」徒歩7分
37.49坪 -
OMMビル(大阪マーチャンダイズ・マート)
大阪市中央区大手前1
谷町線「天満橋」徒歩1分
32.67坪 -
ACN天満橋ビル
大阪市中央区谷町1
谷町線「天満橋」徒歩1分
32.53坪 -
ODC天満橋ビル(旧:レナ天満橋)
大阪市中央区船越町1
谷町線「天満橋」徒歩5分
38.08坪 -
船越ANビル
大阪市中央区船越町2
谷町線「天満橋」徒歩5分
30.0坪







堀中 忠久










