北浜 貸店舗

丹羽 美智子ニワミチコ
「ベレーザ北浜ビル」は、中央区北浜1丁目にございます賃貸事務所。
土佐堀通りに面した、アーバンティックな外観の地下1階・地上9階建てデザイナーズオフィス。
北側からは大川と中之島公園・バラ園が見渡せ、南側には、あの“五代友厚像”のある大阪証券取引所のある絶好のロケーションに位置します。
“北浜”は、金融関連企業が多く集まるビジネスエリア。
昨今は高層マンションが建ち、オシャレなカフェやレストラン、ショップが増え、注目度の高い街です。
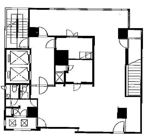
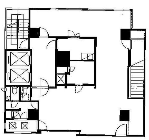
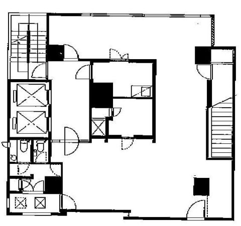
貸室は40坪弱のワンフロア貸し。
独立性が高く、来店型オフィスにもオススメです。
京阪本線・大阪市営地下鉄堺筋線の「北浜駅」より徒歩1分の交通至便です。
同じビルの 貸室情報
| 種別 | 貸店舗 |
|---|---|
| 住所 | 大阪市中央区北浜1 |
| 最寄駅 | 堺筋線 『
北浜 』
1 分
京阪本線 『 北浜 』 1 分 御堂筋線 『 淀屋橋 』 8 分 |
| 構造 | 鉄骨鉄筋コンクリート造 9階建 /地下 1 階 |
| 築年数 | 1988/5 【新耐震基準】 |
| 設備
|
|
営業マンの一言 土佐堀面す1階 諸条件ご相談ください大阪ビジネスエリア北浜の賃貸事務所テナントビル!土佐堀通りと大川が眺望できます。 |
|

※取引態様:仲介
※上記、金額は募集条件です。 条件交渉など、詳細についてはお問合せ下さい。
※広告作成中に契約済みの場合はご容赦下さい。
※図面等現況が相違する場合は現況優先にてご容赦下さい。
北浜 貸店舗の所在地周辺
物件を再検索する
近隣のよく似た坪数の貸事務所
-
清洲西天満ビル
大阪市北区西天満3
堺筋線「北浜」徒歩5分
34.09坪 -
リバーポイント北浜ビル
大阪市中央区北浜1
堺筋線「北浜」徒歩2分
31.5坪 -
北二ビル
大阪市中央区北浜2
堺筋線「北浜」徒歩1分
32.88坪 -
大阪松田ビル
大阪市中央区北浜2
堺筋線「北浜」徒歩1分
36.9坪 -
VIP関西センタービル
大阪市中央区北浜2
堺筋線「北浜」徒歩1分
30.44坪 -
アクアタワービル
大阪市中央区北浜東
堺筋線「北浜」徒歩4分
38.45坪 -
CH ビル
大阪市中央区高麗橋2
堺筋線「北浜」徒歩2分
34.7坪 -
上田北浜ビル
大阪市中央区高麗橋2
堺筋線「北浜」徒歩2分
39.0坪 -
道修町後藤ビル
大阪市中央区道修町2
堺筋線「北浜」徒歩3分
37.28坪 -
清水不動産ビル
大阪市中央区東高麗橋
堺筋線「北浜」徒歩8分
39.0坪
























