堺筋本町 貸事務所

堀中 忠久ホリナカ タダヒサ
「東本町ビル」は、大阪市中央区久太郎町1丁目にございます、賃貸事務所ビル。
大阪市営地下鉄・堺筋線・中央線の「堺筋本町駅」6番出入口を上がった正面の建物です。
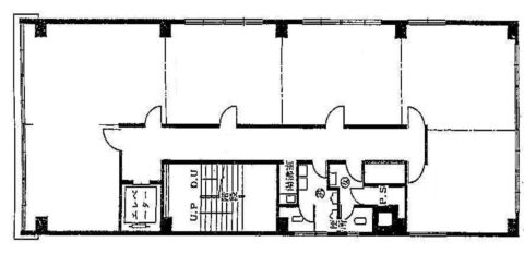
中央大通りに面した、基準階面積が40坪弱、8階建てのビル。
使いやすい10坪~15坪のお部屋に分割していますので、個人様もしくは少人数の企業様に最適です。
定期賃貸借契約が基本になりますが、賃貸条件は周辺相場と比較するとオススメ物件。
交通アクセスの良いビジネス拠点として、是非ご検討ください。
堺筋本町界隈は、大阪ビジネス街中心の御堂筋沿線が徒歩圏内というロケーションでありながら、比較的リースナブルな賃貸条件が魅力のエリアです。
周辺には、中央区役所や大阪商工会議所、産業創造館など、ビジネスをサポートする機関もあります。
また「東本町ビル」の北側には、中央大通に沿って御堂筋まで“船場センタービル”が伸びており、傘無しで御堂筋線「本町駅」までショッピングしながら移動ができます。
| 種別 | 貸事務所 |
|---|---|
| 住所 | 大阪市中央区久太郎町1 |
| 最寄駅 | 堺筋線 『
堺筋本町 』
1 分
御堂筋線 『 本町 』 5 分 中央線 『 本町 』 1 分 |
| 構造 | 鉄筋コンクリート造 8階建 /地下 1 階 |
| 築年数 | 1969/1 |
| 設備
|
|
営業マンの一言 「堺筋本町」駅徒歩1分の好立地オフィスが高コスパ条件。 |
|

※取引態様:仲介
※上記、金額は募集条件です。 条件交渉など、詳細についてはお問合せ下さい。
※広告作成中に契約済みの場合はご容赦下さい。
※図面等現況が相違する場合は現況優先にてご容赦下さい。
堺筋本町 貸事務所の所在地周辺
物件を再検索する
近隣のよく似た坪数の貸事務所
-
本町ビル
大阪市中央区安土町1
堺筋線「堺筋本町」徒歩4分
18.0坪 -
プロパレス安土町ビル
大阪市中央区安土町1
堺筋線「堺筋本町」徒歩2分
16.94坪 -
グランドメゾン船場
大阪市中央区安土町1
堺筋線「堺筋本町」徒歩3分
18.66坪 -
日宝淡路町ビル
大阪市中央区淡路町1
堺筋線「堺筋本町」徒歩7分
16.23坪 -
I.S.O(アイ・エス・オービル)
大阪市中央区淡路町2
堺筋線「堺筋本町」徒歩6分
17.08坪 -
第3エーシービル
大阪市中央区淡路町2
堺筋線「堺筋本町」徒歩8分
15.83坪 -
瓦町ダイワビル(旧:がんすい)
大阪市中央区瓦町2
堺筋線「堺筋本町」徒歩2分
19.05坪 -
AXIS瓦町ビル(アクシス瓦町ビル)
大阪市中央区瓦町2
堺筋線「堺筋本町」徒歩3分
17.7坪 -
いずみやビル
大阪市中央区瓦町2
堺筋線「堺筋本町」徒歩4分
15.7坪 -
堺筋本町プラザビル
大阪市中央区北久宝寺町1
堺筋線「堺筋本町」徒歩4分
19.95坪




























