丸忠第3ビル

中阪 浩之ナカサカ ヒロユキ
「丸忠第3ビル」は、大阪市中央区久太郎町2丁目にございます賃貸事務所。
三休橋筋に面し、船場郵便局の北向かい位置する8階建て。
1968年竣工と築40年以上になりますが、随時リニューアルがされ、管理の行き届いたオフィス。
ビルの出入り口が2か所、エレベーター3基、1階にリフレッシュルーム、屋上にも“スカイデッキ”のある、快適なビジネス拠点です。
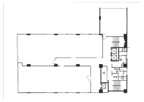
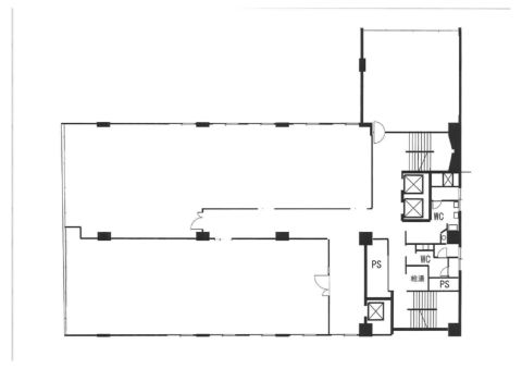
貸室は、約15~40坪の使い勝手の良い広さが豊富にそろっており、お部屋によって様々なアクセントがつけられているオフィス空間を提供。
大阪市営地下鉄堺筋線・中央線の「堺筋本町」が最寄り駅。
大阪メインストリート“御堂筋”の本町・心斎橋エリアへも徒歩圏内の便利な立地です。
丸忠第3ビル 貸室情報
| 種別 | 事務所 |
|---|---|
| 物件名 | 丸忠第3ビル |
| 住所 | 大阪市中央区久太郎町2-5-19 |
| 最寄駅 | 堺筋線 『
堺筋本町 』
3 分
御堂筋線 『 本町 』 3 分 中央線 『 本町 』 3 分 |
| 構造 | 鉄骨鉄筋コンクリート造 8階建 /地下 1 階 |
| 築年数 | 1968/1 (リニューアル: 耐震済 ) |
| 設備
|
|
営業マンの一言 スカイデッキ・喫煙コーナー・リフレッシュルーム・ミーティングルームあります!三休橋筋面す、共用部リニューアル済、1階リフレッシュルーム有 |
|
| 備考 | 免震・耐震補強/リフレッシュルーム |

※取引態様:仲介
※上記、金額は募集条件です。 条件交渉など、詳細についてはお問合せ下さい。
※広告作成中に契約済みの場合はご容赦下さい。
※図面等現況が相違する場合は現況優先にてご容赦下さい。
丸忠第3ビルの所在地周辺
物件を再検索する
近隣のよく似た坪数の貸事務所
-
グランドメゾン船場
大阪市中央区安土町1
堺筋線「堺筋本町」徒歩3分
8.04坪 -
日宝淡路町ビル
大阪市中央区淡路町1
堺筋線「堺筋本町」徒歩7分
7.53坪 -
AXIS瓦町ビル(アクシス瓦町ビル)
大阪市中央区瓦町2
堺筋線「堺筋本町」徒歩3分
9.98坪 -
千晃ビル
大阪市中央区瓦町2
堺筋線「堺筋本町」徒歩4分
9.0坪 -
アメニティ北久宝寺ビル
大阪市中央区北久宝寺町1
堺筋線「堺筋本町」徒歩5分
9.87坪 -
堺筋本町アーバンライフスクエア
大阪市中央区北久宝寺町1
堺筋線「堺筋本町」徒歩3分
7.51坪 -
北久宝寺町ビル
大阪市中央区北久宝寺町1
堺筋線「堺筋本町」徒歩2分
8.22坪 -
ネオフィス堺筋本町
大阪市中央区北久宝寺町1
堺筋線「堺筋本町」徒歩3分
8.8坪 -
マエダビル本社ビル
大阪市中央区北久宝寺町2
堺筋線「堺筋本町」徒歩3分
10.0坪 -
ニューライフ船場
大阪市中央区北久宝寺町2
堺筋線「堺筋本町」徒歩3分
7.49坪























