アルテビル道修町

中阪 浩之ナカサカ ヒロユキ
「アルテビル道修町」は、大阪市中央区道修町1丁目にございます賃貸オフィスビル。
地下鉄堺筋線の「北浜駅」徒歩3分、もちろん京阪本線の利用もできます。
大阪証券取引所を中心に、金融関連の本店・支店が多く集まるビジネスエリアにありながら、「アルテビル道修町」周辺は、非常に落ち着いた環境です。
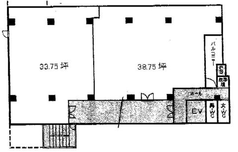
ワンフロア約90坪の中規模ビル、15坪~の分割した貸室もあり、フレキシブルな対応が可能です。
スタイリッシュな外観と、エントランスを入ればモノトーンの落ち着いた内装が、快適なオフィス環境を醸し出しています。
通常賃貸オフィスの敷金・保証金は賃料の8~10ヶ月が必要となりますが、「アルテビル道修町」の場合は、敷金・礼金ともに賃料・共益費をあわせたそれぞれ1ヶ月分のみとリーズナブル。
万一のリスク回避の為、賃貸保証と言って賃料の滞納などがあった時に、保証するシステムの加入が必須となりますが、それでも一般的な賃貸オフィスビルのイニシャルコストに比べる断然割安です。
| 種別 | 貸事務所 |
|---|---|
| 物件名 | アルテビル道修町 |
| 住所 | 大阪市中央区道修町1-2-11 |
| 最寄駅 | 堺筋線 『
北浜 』
3 分
堺筋線 『 堺筋本町 』 6 分 御堂筋線 『 淀屋橋 』 8 分 |
| 構造 | S(鉄骨)造 10階建 |
| 築年数 | 1995/7 【新耐震基準】 |
| 設備
|
|
営業マンの一言 堺筋線 北浜駅徒歩3分 堺筋本町駅6分 御堂筋線 淀屋橋駅も徒歩圏内 ビジネスエリア中心地にありながら落ち着いたオフィス環境です。 |
|

※取引態様:仲介
※上記、金額は募集条件です。 条件交渉など、詳細についてはお問合せ下さい。
※広告作成中に契約済みの場合はご容赦下さい。
※図面等現況が相違する場合は現況優先にてご容赦下さい。
アルテビル道修町の所在地周辺
物件を再検索する
近隣のよく似た坪数の貸事務所
-
大阪JAビル
大阪市北区西天満1
堺筋線「北浜」徒歩3分
44.88坪 -
88堂島ウイング
大阪市北区西天満3
堺筋線「北浜」徒歩4分
47.16坪 -
北浜小林ビル
大阪市中央区北浜1
堺筋線「北浜」徒歩2分
45.1坪 -
大阪証券取引所ビル
大阪市中央区北浜1
堺筋線「北浜」徒歩1分
40.24坪 -
小山ビル
大阪市中央区高麗橋2
堺筋線「北浜」徒歩2分
42.57坪 -
東栄ビル
大阪市中央区高麗橋2
堺筋線「北浜」徒歩1分
40.29坪 -
アイケイビル
大阪市中央区高麗橋2
堺筋線「北浜」徒歩3分
43.0坪 -
大山ビル
大阪市中央区平野町1
堺筋線「北浜」徒歩3分
45.37坪 -
イシモトビル
大阪市中央区平野町2
堺筋線「北浜」徒歩2分
42.04坪


















