永田中央ビル

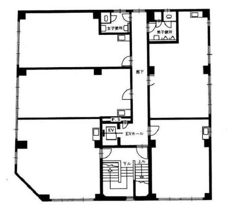
永田中央ビル 貸室情報
| 階 | 号室 | 坪数 | ㎡数 | 賃料 | 共益費 | 保証金 | |
|---|---|---|---|---|---|---|---|
| 1階 | 5 | 12.49坪 | 41.29㎡ | お電話・メールにて お問い合わせください。 |  | ||
| 3階 | 4 | 15.6坪 | 51.58㎡ | お電話・メールにて お問い合わせください。 |  | ||
 
      
      
      | 種別 | 貸事務所 | 
|---|---|
| 物件名 | 永田中央ビル | 
| 住所 | 大阪市中央区森ノ宮中央2-8-2 | 
| 最寄駅 | 中央線 『 森ノ宮 』 5 分 | 
| 構造 | 鉄筋コンクリート造 5階建 | 
| 築年数 | 1980/7 | 
| 設備 | |
| 営業マンの一言 | |

※取引態様:仲介
            ※上記、金額は募集条件です。 条件交渉など、詳細についてはお問合せ下さい。
            ※広告作成中に契約済みの場合はご容赦下さい。
            ※図面等現況が相違する場合は現況優先にてご容赦下さい。
永田中央ビルの所在地周辺
物件を再検索する
近隣のよく似た坪数の貸事務所
- 
                    ICB森ノ宮ビル大阪市中央区森ノ宮中央1 
 中央線「森ノ宮」徒歩0.2分
 21.42坪

 お問合せリスト・物件リクエスト
 お問合せリスト・物件リクエスト 電話でお問合せ
 電話でお問合せ







 
                                   



 丹羽 美智子
丹羽 美智子

















