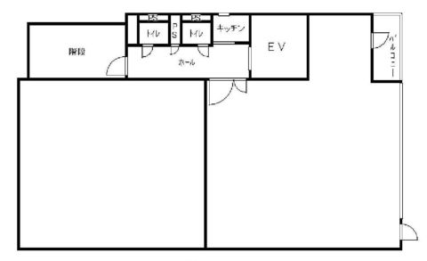
JP松屋町駅前ビル

JP松屋町駅前ビル 貸室情報
| 種別 | 貸事務所 |
|---|---|
| 物件名 | JP松屋町駅前ビル |
| 住所 | 大阪市中央区松屋町6-14 |
| 最寄駅 | 長堀鶴見緑地線 『
松屋町 』
2 分
堺筋線 『 長堀橋 』 6 分 長堀鶴見緑地線 『 長堀橋 』 7 分 |
| 構造 | 鉄骨造 7階建 |
| 築年数 | 1997/9 【新耐震基準】 |
| 設備
|
|
営業マンの一言 |
|

※取引態様:仲介
※上記、金額は募集条件です。 条件交渉など、詳細についてはお問合せ下さい。
※広告作成中に契約済みの場合はご容赦下さい。
※図面等現況が相違する場合は現況優先にてご容赦下さい。





中阪 浩之



