アール肥後橋ビル 6階-No.12092
 中阪 浩之
中阪 浩之ナカサカ ヒロユキ
アール肥後橋ビルの豆知識
「アール肥後橋ビル」は、大阪市西区江戸堀1丁目にございます賃貸事務所。
四ツ橋筋に面した、6階建て。
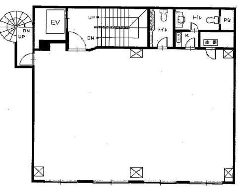
使い勝手の良い、広さ約30坪のワンフロア貸しオフィスビル。
駅近の独立性が確保された、1フロア・1テナント仕様は、来店型オフィスや派遣会社事務所にオススメ物件。
ほぼ正方形に近い貸室は採光も良く、レイアウトもフレキシブル。
給湯室など水回りを専用使用できつつ、トイレが男女別に分かれているのも、うれしいポイントです。
大阪市営地下鉄四つ橋線の「肥後橋駅」より徒歩1分。
御堂筋線の「淀屋橋駅」へも徒歩4分と、フットワークの良いビジネス立地です。
アール肥後橋ビル 基本情報
| 種別 | 貸事務所(物件番号:12092) | 
|---|---|
| 物件名 | アール肥後橋ビル | 
| 住所 | 大阪市西区江戸堀1-8-17 | 
| 所在階 | 6階部分フロア号室 | 
| 契約面積 | 30.63 坪・ 101.26 ㎡ | 
| 賃料 | 総額
300,000 円 (税抜)・坪単価
9,794 円/坪 (税抜) 総額 330,000 円(税含む) | 
| 共益費 | 総額 賃料に含む (税抜)・坪単価 賃料に含む (税抜) 総額 賃料に含む (税含む) | 
| 月額合計 | 総額 300,000 円(税抜)・坪単価 9,794 円(税抜) 総額 330,000 円 (税含む) | 
| 保証金 | 相談 | 
| 礼金 | 相談 | 
|  | |
| 最寄駅 | 四ツ橋線                  『
                  肥後橋                  』
                  1                  分 御堂筋線 『 淀屋橋 』 4 分 | 
| 構造 | 鉄筋コンクリート造 6階建 | 
| 築年数 | 1981/1 (リニューアル: 2008/11 ) | 
| 設備 | |
| エレベーター | 1基 | 
| 営業マンの一言四ツ橋筋沿いのワンフロア貸し事務所 大阪メトロ四ツ橋線 肥後橋駅徒歩1分 大阪メトロ御堂筋線 淀屋橋駅4分 ワンフロアワンテナント 24時間利用可能 2008年全館リニューアル済み賃貸物件 | |

※取引態様:仲介
            ※上記、金額は募集条件です。 条件交渉など、詳細についてはお問合せ下さい。
            ※広告作成中に契約済みの場合はご容赦下さい。
            ※図面等現況が相違する場合は現況優先にてご容赦下さい。
アール肥後橋ビルの所在地周辺
物件を再検索する
アール肥後橋ビル 関連物件
アール肥後橋ビル 近隣のよく似た坪数の貸事務所
- 
                    肥後橋レックスビル大阪市西区江戸堀1 
 四ツ橋線「肥後橋」徒歩1分
 34.23坪
- 
                    太陽ビル大阪市西区江戸堀1 
 四ツ橋線「肥後橋」徒歩1分
 30.21坪
- 
                    肥後橋渡辺ビル大阪市西区江戸堀1 
 四ツ橋線「肥後橋」徒歩1分
 30.56坪
- 
                    肥後橋センタービル大阪市西区江戸堀1 
 四ツ橋線「肥後橋」徒歩1分
 34.2坪
- 
                    肥後橋ニッタイビル大阪市西区江戸堀1 
 四ツ橋線「肥後橋」徒歩1分
 31.17坪
- 
                    昭和ビルディング(江戸堀)大阪市西区江戸堀1 
 四ツ橋線「肥後橋」徒歩3分
 35.93坪
- 
                    肥後橋エフビル(旧:肥後橋延三)大阪市西区江戸堀1 
 四ツ橋線「肥後橋」徒歩1分
 31.13坪
- 
                    肥後橋IPビル大阪市西区江戸堀1 
 四ツ橋線「肥後橋」徒歩2分
 31.46坪
- 
                    肥後橋イシカワビル大阪市西区江戸堀1 
 四ツ橋線「肥後橋」徒歩4分
 32.4坪
- 
                    江戸堀グロウスビル大阪市西区江戸堀1 
 四ツ橋線「肥後橋」徒歩5分
 30.87坪

 お問合せリスト・物件リクエスト
 お問合せリスト・物件リクエスト 電話でお問合せ
 電話でお問合せ



 
                  
                


 
                                   
































