江戸堀グロウスビル 6階-No.38054
中阪 浩之ナカサカ ヒロユキ
江戸堀グロウスビルの豆知識
「江戸堀グロウスビル」は、大阪市西区江戸堀1丁目にございます賃貸事務所。
なにわ筋より少し東に入った、グレータイルの9階建て。
緑の植栽と駐車場からなる、ゆとりのビルアプローチ。
エントランスホールもスッキリした内装で、管理の良さがうかがえます。
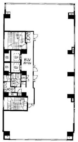
貸室は、基準階面積約85坪。
南北両面が道路面の採光が良いオフィススペースが確保。
エレベーター2基、OAフロア、男女別シャワートイレ、駐車場とビルスペックも充実しています。
大阪市営地下鉄・四つ橋線の「肥後橋駅」より徒歩5分の交通至便。
大阪江戸堀・肥後橋界隈は、公園や小学校等がある落ち着いたロケーション。一方、銀行やコンビニも多く、便利なビジネス立地でもあります。
江戸堀グロウスビル 基本情報
| 種別 | 貸事務所(物件番号:38054) |
|---|---|
| 物件名 | 江戸堀グロウスビル |
| 住所 | 大阪市西区江戸堀1-26-20 |
| 所在階 | 6階部分号室 |
| 契約面積 | 30.87 坪・ 102.05 ㎡ |
| 賃料 | 総額
355,005 円 (税抜)・坪単価
11,500 円/坪 (税抜) 総額 390,506 円(税含む) |
| 共益費 | 総額 108,045 円 (税抜)・坪単価 3,500 円/坪 (税抜) 総額 118,850 円 (税含む) |
| 月額合計 | 総額 463,050 円(税抜)・坪単価 15,000 円(税抜) 総額 509,355 円 (税含む) |
| 保証金 | 4,260,060 円 |
| 解約引 | 全額返金 |
| 最寄駅 | 四ツ橋線 『 肥後橋 』 5 分 |
| 構造 | 鉄骨鉄筋コンクリート造 9階建 /地下 1 階 |
| 築年数 | 1991/6 【新耐震基準】 |
| 設備
|
|
| エレベーター | 2基 |
営業マンの一言 南北2面採光のオフィスビルです。大阪・江戸堀・肥後橋エリアの賃貸事務所。四ツ橋線肥後橋駅徒歩5分 御堂筋からも徒歩圏内です。 |
|

※取引態様:仲介
※上記、金額は募集条件です。 条件交渉など、詳細についてはお問合せ下さい。
※広告作成中に契約済みの場合はご容赦下さい。
※図面等現況が相違する場合は現況優先にてご容赦下さい。
江戸堀グロウスビルの所在地周辺
物件を再検索する
江戸堀グロウスビル 関連物件
江戸堀グロウスビル 近隣のよく似た坪数の貸事務所
-
肥後橋レックスビル
大阪市西区江戸堀1
四ツ橋線「肥後橋」徒歩1分
34.23坪 -
太陽ビル
大阪市西区江戸堀1
四ツ橋線「肥後橋」徒歩1分
30.21坪 -
肥後橋渡辺ビル
大阪市西区江戸堀1
四ツ橋線「肥後橋」徒歩1分
30.56坪 -
アール肥後橋ビル
大阪市西区江戸堀1
四ツ橋線「肥後橋」徒歩1分
30.63坪 -
肥後橋センタービル
大阪市西区江戸堀1
四ツ橋線「肥後橋」徒歩1分
34.2坪 -
肥後橋ニッタイビル
大阪市西区江戸堀1
四ツ橋線「肥後橋」徒歩1分
31.17坪 -
昭和ビルディング(江戸堀)
大阪市西区江戸堀1
四ツ橋線「肥後橋」徒歩3分
35.93坪 -
肥後橋エフビル(旧:肥後橋延三)
大阪市西区江戸堀1
四ツ橋線「肥後橋」徒歩1分
31.13坪 -
肥後橋IPビル
大阪市西区江戸堀1
四ツ橋線「肥後橋」徒歩2分
31.46坪 -
肥後橋イシカワビル
大阪市西区江戸堀1
四ツ橋線「肥後橋」徒歩4分
32.4坪































