堺筋本町センタービル 13階-No.13260
営業スタッフ紹介
堀中 忠久ホリナカ タダヒサ
堺筋本町センタービル その他の貸室情報
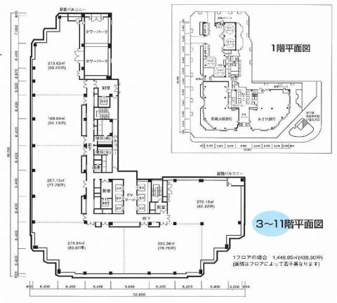
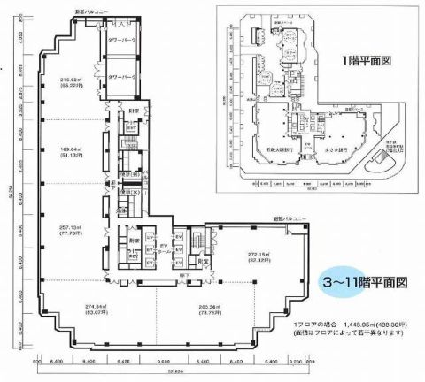
堺筋本町センタービル 基本情報
| 種別 | 貸事務所(物件番号:13260) |
|---|---|
| 物件名 | 堺筋本町センタービル |
| 住所 | 大阪市中央区本町2-1-6 |
| 所在階 | 13階部分12号室 |
| 契約面積 | 60.91 坪・ 201.36 ㎡ |
| 最寄駅 |
堺筋線 『
堺筋本町 』
0.2 分
御堂筋線 『 本町 』 5 分 中央線 『 堺筋本町 』 2 分 |
| 構造 | 鉄骨鉄筋コンクリート造 16階建 /地下 1 階 |
| 築年数 | 1991/5 【新耐震基準】 |
| 設備
|
|
| エレベーター | 8基 |
営業マンの一言 商業ビジネスゾ-ン本町通と堺筋の角地に位置する立地、ランドマークオフィスビル。大阪メトロ堺筋線 堺筋本町駅徒歩1分 御堂筋線・中央線利用可能 本町通りに面し、ガラスウォールのが綺麗な外観。人気オフィスビル!個別空調(補助空調・窓側) |
|

※取引態様:仲介
※上記、金額は募集条件です。 条件交渉など、詳細についてはお問合せ下さい。
※広告作成中に契約済みの場合はご容赦下さい。
※図面等現況が相違する場合は現況優先にてご容赦下さい。
堺筋本町センタービルの所在地周辺
ストリートビューを表示▼
入居テナント
- ㈱中外
- NECフィールディング㈱
- テンプスタッフキャリアコンサルティング㈱
- ㈱エスワイシステム
- ㈱エーアイテイー
- 住友生命保険相互会社
- フュージョン・コミュニケーションズ㈱
- LGエレクトロニクス・ジャパン㈱
- サンコロナ小田㈱
- 日本インフォメーション
- ㈱プロダクト・ワランティ・ジャパン
- 三菱電機冷熱機器販売㈱
- クラシエ薬品㈱
物件を再検索する
堺筋本町センタービル 関連物件
堺筋本町センタービル 近隣のよく似た坪数の貸事務所
-
野村不動産大阪ビル
大阪市中央区安土町1
堺筋線「堺筋本町」徒歩1分
68.87坪 -
大阪国際ビルディング
大阪市中央区安土町2
堺筋線「堺筋本町」徒歩1分
66.03坪 -
タカクラビル
大阪市中央区淡路町2
堺筋線「堺筋本町」徒歩7分
66.97坪 -
ミラータワービル
大阪市中央区瓦町2
堺筋線「堺筋本町」徒歩4分
64.7坪 -
SC堺筋本町ビル
大阪市中央区北久宝寺町1
堺筋線「堺筋本町」徒歩3分
62.58坪 -
三星中央別館ビル
大阪市中央区久太郎町1
堺筋線「堺筋本町」徒歩2分
62.0坪 -
三星備後町ビル
大阪市中央区備後町1
堺筋線「堺筋本町」徒歩2分
67.0坪 -
三星本町ビル
大阪市中央区本町1
堺筋線「堺筋本町」徒歩1分
66.0坪 -
セントピア堺筋本町ビル
大阪市中央区南本町2
堺筋線「堺筋本町」徒歩1分
66.04坪


































