りそな・アルテ桜川ビル 7階-No.13638
りそな・アルテ桜川ビル その他の貸室情報
りそな・アルテ桜川ビル 基本情報
| 種別 | 貸事務所(物件番号:13638) |
|---|---|
| 物件名 | りそな・アルテ桜川ビル |
| 住所 | 大阪市浪速区幸町2-7-3 |
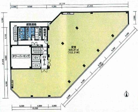
| 所在階 | 7階部分1号室 |
| 契約面積 | 80.89 坪・ 267.41 ㎡ |
| 最寄駅 |
千日前線 『
桜川 』
1 分
四ツ橋線 『 なんば 』 5 分 千日前線 『 桜川 』 1 分 |
| 構造 | 鉄骨鉄筋コンクリート造 7階建 |
| 築年数 | 1986/11 【新耐震基準】 |
| 設備
|
|
| エレベーター | 2基 |
営業マンの一言 幹線道路面す角ビル・採光良! |
|

※取引態様:仲介
※上記、金額は募集条件です。 条件交渉など、詳細についてはお問合せ下さい。
※広告作成中に契約済みの場合はご容赦下さい。
※図面等現況が相違する場合は現況優先にてご容赦下さい。
りそな・アルテ桜川ビルの所在地周辺
ストリートビューを表示▼















中阪 浩之



