KCビル 3階-No.17178
中阪 浩之ナカサカ ヒロユキ
KCビルの豆知識
「KCビル」は、大阪市中央区瓦町3丁目にございます賃貸事務所。
ダーク調ガラスウォールと間口の広いビル構えが、落ち着きある地上9階建ての賃貸オフィス。
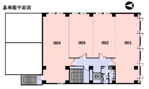
基準階面積は約80坪。
約20坪前後のお部屋分割したフロアもございますので、お問い合わせください。
大阪ビジネス街・淀屋橋・本町エリアに位置する好ロケーションでありながら、コストパフォーマンスの高さが魅力的な賃貸事務所ビル。
大阪メインストリート“御堂筋”に近く、「本町駅」や「淀屋橋駅」へも徒歩3~5分のアクセス。
駐車場・駐輪場もあり、フットワークの良いビジネス拠点です。
KCビル その他の貸室情報
KCビル 基本情報
| 種別 | 貸事務所(物件番号:17178) |
|---|---|
| 物件名 | KCビル |
| 住所 | 大阪市中央区瓦町3-4-7 |
| 所在階 | 3階部分1+2号室 |
| 契約面積 | 43.81 坪・ 144.83 ㎡ |
| 最寄駅 |
御堂筋線 『
本町 』
3 分
御堂筋線 『 淀屋橋 』 5 分 京阪本線 『 北浜 』 4 分 |
| 構造 | S(鉄骨)造 9階建 |
| 築年数 | 1984/9 【新耐震基準】 |
| 設備
|
|
| エレベーター | 1基 |
営業マンの一言 淀屋橋・本町駅近オフィスビル大阪ビジネス街のリーズナブル賃貸事務所 |
|

※取引態様:仲介
※上記、金額は募集条件です。 条件交渉など、詳細についてはお問合せ下さい。
※広告作成中に契約済みの場合はご容赦下さい。
※図面等現況が相違する場合は現況優先にてご容赦下さい。
KCビルの所在地周辺
物件を再検索する
KCビル 近隣のよく似た坪数の貸事務所
-
本町サンケイビル
大阪市中央区本町4
御堂筋線「本町」徒歩2分
45.23坪 -
京阪神安土町ビル
大阪市中央区安土町3
御堂筋線「本町」徒歩1分
47.68坪 -
淡路町ダイビル
大阪市中央区淡路町3
御堂筋線「本町」徒歩5分
43.5坪 -
グリーンビル
大阪市中央区瓦町3
御堂筋線「本町」徒歩4分
42.99坪 -
おおきに御堂筋瓦町ビル
大阪市中央区瓦町4
御堂筋線「本町」徒歩3分
42.14坪 -
南星瓦町ビル
大阪市中央区瓦町4
御堂筋線「本町」徒歩4分
43.14坪 -
オリックス久太郎町ビル(ORIX久太郎町ビル)
大阪市中央区久太郎町3
御堂筋線「本町」徒歩3分
44.2坪 -
リバティ御堂筋本町
大阪市中央区久太郎町3
御堂筋線「本町」徒歩1分
45.0坪 -
ルセオン博労町
大阪市中央区博労町3
御堂筋線「本町」徒歩7分
40.34坪 -
L.Biz大阪本町
大阪市中央区博労町4
御堂筋線「本町」徒歩6分
43.46坪

























