プロスパー平野町ビル 3階-No.20057
丹羽 美智子ニワミチコ
プロスパー平野町ビル 基本情報
| 種別 | 貸事務所(物件番号:20057) |
|---|---|
| 物件名 | プロスパー平野町ビル
スモールオフィス空き予定出ました! |
| 住所 | 大阪市中央区平野町3-1-8 |
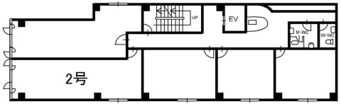
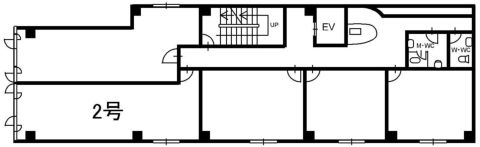
| 所在階 | 3階部分5号室 その他、貸室 |
| 契約面積 | 6.8 坪・ 22.48 ㎡ |
| 賃料 | お電話・メールにてお問合下さい。 |
| 共益費 | お電話・メールにてお問合下さい。 |
| 月額合計 | お電話・メールにてお問合下さい。 |
| 保証金 | お電話・メールにてお問合下さい。 |
| 費用備考 | 賃貸保証加入要 |
| 最寄駅 |
御堂筋線 『
淀屋橋 』
5 分
堺筋線 『 北浜 』 7 分 御堂筋線 『 本町 』 7 分 |
| 構造 | S(鉄骨)造 9階建 /地下 1 階 |
| 築年数 | 1989/1 【新耐震基準】 (リニューアル: 済 ) |
| 設備
|
|
| エレベーター | 1基 |
営業マンの一言 大阪ビジネス街のスモール賃貸オフィス。大阪メトロ御堂筋線 淀屋橋駅徒歩5分 堺筋線・御堂筋本町駅も利用可能 淀屋橋エリアのコンパクトな賃貸事務所ビル。駐車場完備。 |
|
| 備考 | 貸し会議室/リフレッシュルーム/オートロック |

※取引態様:仲介
※上記、金額は募集条件です。 条件交渉など、詳細についてはお問合せ下さい。
※広告作成中に契約済みの場合はご容赦下さい。
※図面等現況が相違する場合は現況優先にてご容赦下さい。
プロスパー平野町ビルの所在地周辺
プロスパー平野町ビル その他の部屋情報
| 階 | 号室 | 坪数 | ㎡数 | 賃料 | 共益費 | 保証金 | |
|---|---|---|---|---|---|---|---|
| 5階 | 5 | 6.8坪 | 22.48㎡ | お電話・メールにて お問い合わせください。 | ![]() |
||
| 6階 | 1 | 11.98坪 | 39.61㎡ | お電話・メールにて お問い合わせください。 | ![]() |
||
| 6階 | 3 | 8.03坪 | 26.55㎡ | お電話・メールにて お問い合わせください。 | ![]() |
||
| 7階 | 1 | 23.79坪 | 78.65㎡ | お電話・メールにて お問い合わせください。 | ![]() |
||
物件を再検索する
プロスパー平野町ビル 関連物件
プロスパー平野町ビル 近隣のよく似た坪数の貸事務所
-
関電不動産梅田新道ビル
大阪市北区堂島1
御堂筋線「淀屋橋」徒歩4分
9.52坪 -
大江ビルヂング
大阪市北区西天満2
御堂筋線「淀屋橋」徒歩5分
9.5坪 -
野村ビル
大阪市北区西天満2
御堂筋線「淀屋橋」徒歩9分
7.44坪 -
仁商建物(キミショウタテモノ)
大阪市中央区淡路町3
御堂筋線「淀屋橋」徒歩5分
9.3坪 -
淀屋橋ホワイトビル
大阪市中央区北浜3
御堂筋線「淀屋橋」徒歩1分
7.03坪 -
SI横堀ビル
大阪市中央区高麗橋4
御堂筋線「淀屋橋」徒歩5分
7.26坪 -
道修町ビルディング
大阪市中央区道修町3
御堂筋線「淀屋橋」徒歩3分
9.65坪 -
キューアス平野町ビル
大阪市中央区平野町3
御堂筋線「淀屋橋」徒歩5分
9.06坪 -
BizMiix淀屋橋(ビズミックス淀屋橋)
大阪市中央区平野町3
御堂筋線「淀屋橋」徒歩3分
7.31坪 -
ニューライフ平野町
大阪市中央区平野町3
御堂筋線「淀屋橋」徒歩5分
8.15坪





























