マキセビル 2階-No.26168
中阪 浩之ナカサカ ヒロユキ
マキセビルの豆知識
「マキセビル」は、大阪市西区土佐堀1丁目にございます、賃貸事務所ビル。
地下鉄四つ橋線の「肥後橋駅」より徒歩1分の交通アクセス。
土佐堀川に面しており、土佐堀通りからは1本北に入ったところに位置しますので、利便性抜群ながら、静かな環境。
オフィス拠点としては、おすすめの賃貸物件です。
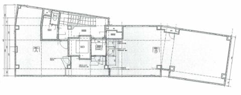
下層階は20坪弱、上層階は約10坪位の広さの貸室がございます。
賃貸条件は、フリーレント等の交渉ができますので、ご興味がございましたら是非一度ご相談ください。
「肥後橋駅」から京阪電鉄中之島線の「渡辺橋駅」へは、“中之島地下街”で連絡されています。
“肥後橋”界隈は、大阪のビジネス街・淀屋橋に隣接するエリアとして、“中之島フェステバルタワー”や“大同生命大阪本社ビル”“アパホテル大阪肥後橋駅前”等のランドマークビルが建ち並んでいます。
“中之島フェステバルタワー”は、2012年に竣工した超高層ビル。
低層階にフスティバルホールと商業施設のフェスティバルプラザ、中高層階にテナント・オフィスとなっています。
2017年には、西側に“中之島フェステバルタワー・ウエスト”が完成予定です。
マキセビル その他の貸室情報
マキセビル 基本情報
| 種別 | 貸事務所(物件番号:26168) |
|---|---|
| 物件名 | マキセビル |
| 住所 | 大阪市西区土佐堀1-1-21 |
| 所在階 | 2階部分号室 |
| 契約面積 | 18.99 坪・ 62.78 ㎡ |
| 最寄駅 | 四ツ橋線 『 肥後橋 』 1 分 |
| 構造 | S(鉄骨)造 5階建 |
| 築年数 | 1999/2 【新耐震基準】 |
| 設備
|
|
| エレベーター | 1基 |
営業マンの一言 土佐堀川面すグッドロケーション!大阪メトロ四ツ橋線 肥後橋駅徒歩1分 土佐堀川面すロケーション抜群の賃貸オフィスビルです。 |
|

※取引態様:仲介
※上記、金額は募集条件です。 条件交渉など、詳細についてはお問合せ下さい。
※広告作成中に契約済みの場合はご容赦下さい。
※図面等現況が相違する場合は現況優先にてご容赦下さい。
マキセビルの所在地周辺
物件を再検索する
マキセビル 関連物件
マキセビル 近隣のよく似た坪数の貸事務所
-
大同生命肥後橋南(旧:大同生命南館)
大阪市西区江戸堀1
四ツ橋線「肥後橋」徒歩1分
15.38坪 -
肥後橋センタービル
大阪市西区江戸堀1
四ツ橋線「肥後橋」徒歩1分
18.59坪 -
小谷ビル(江戸堀)
大阪市西区江戸堀1
四ツ橋線「肥後橋」徒歩2分
19.0坪 -
タマリスビル
大阪市西区江戸堀1
四ツ橋線「肥後橋」徒歩3分
16.0坪 -
NAGASAKI 長崎ビル
大阪市西区江戸堀1
四ツ橋線「肥後橋」徒歩2分
20.0坪 -
9999ビル(フォーナインズ)
大阪市西区江戸堀1
四ツ橋線「肥後橋」徒歩2分
16.81坪 -
三洋ビル
大阪市西区江戸堀1
四ツ橋線「肥後橋」徒歩3分
16.1坪 -
肥後橋ビル3号館
大阪市西区江戸堀1
四ツ橋線「肥後橋」徒歩4分
20.0坪 -
KS大阪江戸堀ビル(旧:江戸堀大沼)
大阪市西区江戸堀1
四ツ橋線「肥後橋」徒歩5分
20.0坪 -
アルカディーナ京町堀
大阪市西区京町堀1
四ツ橋線「肥後橋」徒歩3分
20.0坪
































