リバーポイント北浜ビル 2階-No.26872
中阪 浩之ナカサカ ヒロユキ
リバーポイント北浜ビルの豆知識
「西川三井ビルディング」は土佐堀通りに面し、中之島公園を望むことのできる眺望の良い賃貸事務所ビルです。
京阪電車「北浜駅」から徒歩2分、地下鉄堺筋線「北浜駅」からも徒歩5分の好アクセス。
基準階の貸室はワンフロア約80坪、エレベーター2基の快適環境のオフィス空間。
約10坪ほどの小規模区画もあり、少人数の企業様にも人気があります。
北浜界隈は、江戸時代から米穀取引が執り行われ、大阪の経済・金融の中心地とされています。
そのため、現在でも大阪取引所を中心に銀行・証券会社等の本・支店が多くならんでおり、人・お金・情報のネットワークとデータベースが集積する最先端エリアとなっております。
それだけの“人”が集まりますので、必然的に様々なお店も多く生まれており、一流どころから庶民の味まで楽しめます。
土佐堀川を渡れば、大阪市初の市営公園“中之島公園”です。
約1.5㎞、面積10.6haの緑あふれる都会のオアシスでリフレッシュもイイものです。
リバーポイント北浜ビル その他の貸室情報
| 階 | 号室 | 坪数 | ㎡数 | 賃料 | 共益費 | 敷金 | |
|---|---|---|---|---|---|---|---|
| 5階 | 3 | 20.12坪 | 66.52㎡ | お電話・メールにて お問い合わせください。 | ![]() |
||
| 9階 | 2 | 31.5坪 | 104.14㎡ | お電話・メールにて お問い合わせください。 | ![]() |
||
リバーポイント北浜ビル 基本情報
| 種別 | 貸事務所(物件番号:26872) |
|---|---|
| 物件名 | リバーポイント北浜ビル |
| 住所 | 大阪市中央区北浜1-3-14 |
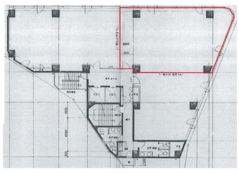
| 所在階 | 2階部分1号室 |
| 契約面積 | 31.44 坪・ 103.94 ㎡ |
| 最寄駅 |
堺筋線 『
北浜 』
2 分
京阪本線 『 北浜 』 1 分 京阪中之島線 『 なにわ橋 』 3 分 |
| 構造 | 鉄骨鉄筋コンクリート造 10階建 |
| 築年数 | 1990/3 【新耐震基準】 |
| 設備
|
|
| エレベーター | 2基 |
営業マンの一言 北浜駅1分の好立地オフィス大阪メトロ堺筋線「北浜駅」より徒歩3分。土佐堀通り沿いの好立地です。中之島公園を望む賃貸事務所ビル |
|

※取引態様:仲介
※上記、金額は募集条件です。 条件交渉など、詳細についてはお問合せ下さい。
※広告作成中に契約済みの場合はご容赦下さい。
※図面等現況が相違する場合は現況優先にてご容赦下さい。
リバーポイント北浜ビルの所在地周辺
物件を再検索する
リバーポイント北浜ビル 関連物件
リバーポイント北浜ビル 近隣のよく似た坪数の貸事務所
-
ビルマビル北浜
大阪市中央区北浜1
堺筋線「北浜」徒歩1分
30.14坪 -
ベレーザ北浜ビル
大阪市中央区北浜1
堺筋線「北浜」徒歩1分
34.69坪 -
北二ビル
大阪市中央区北浜2
堺筋線「北浜」徒歩1分
32.88坪 -
VIP関西センタービル
大阪市中央区北浜2
堺筋線「北浜」徒歩1分
30.44坪 -
CH ビル
大阪市中央区高麗橋2
堺筋線「北浜」徒歩2分
34.7坪 -
上田北浜ビル
大阪市中央区高麗橋2
堺筋線「北浜」徒歩2分
39.0坪 -
道修町後藤ビル
大阪市中央区道修町2
堺筋線「北浜」徒歩3分
37.28坪 -
清水不動産ビル
大阪市中央区東高麗橋
堺筋線「北浜」徒歩8分
39.0坪 -
三精ビル
大阪市中央区東高麗橋
堺筋線「北浜」徒歩4分
38.9坪 -
大山ビル
大阪市中央区平野町1
堺筋線「北浜」徒歩3分
34.15坪
























