本町サザンビル 1階-No.26967
本町サザンビル その他の貸室情報
| 階 | 号室 | 坪数 | ㎡数 | 賃料 | 共益費 | 敷金 | |
|---|---|---|---|---|---|---|---|
| 5階 | 6 | 14.09坪 | 46.58㎡ | 141,000 円 | 28,120 円 | 141,000 円 | ![]() |
| 9階 | 5 | 13.92坪 | 46.02㎡ | 146,160 円 | 27,840 円 | 146,160 円 | ![]() |
本町サザンビル 基本情報
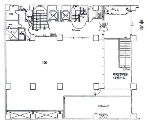
| 種別 | 店舗(物件番号:26967) |
|---|---|
| 物件名 | 本町サザンビル |
| 住所 | 大阪市中央区南本町2-1-1 |
| 所在階 | 1階部分1号室 |
| 契約面積 | 65.88 坪・ 217.79 ㎡ |
| 最寄駅 |
堺筋線 『
堺筋本町 』
1 分
中央線 『 堺筋本町 』 2 分 |
| 構造 | 鉄骨鉄筋コンクリート造 10階建 /地下 2 階 |
| 築年数 | 1968/3 |
| 設備
|
|
| エレベーター | 2基 |
営業マンの一言 大通り面オフィス大阪メトロ堺筋線 堺筋本町駅徒歩1分の好立地 中央線利用可能 堺筋面した視認性の良いオフィスビル! |
|

※取引態様:仲介
※上記、金額は募集条件です。 条件交渉など、詳細についてはお問合せ下さい。
※広告作成中に契約済みの場合はご容赦下さい。
※図面等現況が相違する場合は現況優先にてご容赦下さい。
本町サザンビルの所在地周辺
ストリートビューを表示▼
物件を再検索する
本町サザンビル 近隣のよく似た坪数の貸事務所
-
野村不動産大阪ビル
大阪市中央区安土町1
堺筋線「堺筋本町」徒歩1分
68.87坪 -
大阪国際ビルディング
大阪市中央区安土町2
堺筋線「堺筋本町」徒歩1分
66.03坪 -
タカクラビル
大阪市中央区淡路町2
堺筋線「堺筋本町」徒歩7分
66.97坪 -
ミラータワービル
大阪市中央区瓦町2
堺筋線「堺筋本町」徒歩4分
64.7坪 -
SC堺筋本町ビル
大阪市中央区北久宝寺町1
堺筋線「堺筋本町」徒歩3分
62.58坪 -
三星中央別館ビル
大阪市中央区久太郎町1
堺筋線「堺筋本町」徒歩2分
62.0坪 -
三星備後町ビル
大阪市中央区備後町1
堺筋線「堺筋本町」徒歩2分
67.0坪 -
三星本町ビル
大阪市中央区本町1
堺筋線「堺筋本町」徒歩1分
66.0坪 -
セントピア堺筋本町ビル
大阪市中央区南本町2
堺筋線「堺筋本町」徒歩1分
66.04坪











丹羽 美智子












