若杉東梅田ビル 7階-No.27375
 中阪 浩之
中阪 浩之ナカサカ ヒロユキ
若杉東梅田ビルの豆知識
「若杉東梅田ビル」は、大阪市北区堂山町にございます、賃貸事務所・テナントビルです。
大阪市営地下鉄・谷町線の「東梅田駅」より徒歩6分をはじめ、御堂筋線や阪急・阪神線の「梅田駅」、JRの「大阪駅」を徒歩圏内とする好立地オフィス。
基準階面積が約20坪と小規模な建物ながら、新御堂と都島通りの交差点(堂山町交差点)からすぐの大通り面したロケーションは、オフィス拠点としてだけでなく、来店型のスクールや美容系のテナントにも人気の賃貸物件です。
平日・日曜祝日問わず、人通りの多い場所ですが、平日の日中は保安員も常駐し、防犯カメラなどのセキュリティもあり、安心・安全の快適オフィス店舗。
使いやすい約10坪に貸室に分割もご相談可能です。是非お問合せください。
「若杉東梅田ビル」の周辺は、新御堂筋の西側に阪急系列のビル・ショップがあふれ、JR高架の北側には若者に人気の“茶屋町エリア”、南側には飲食店の多い“阪急東通商店街”があります。
 
      
      若杉東梅田ビル 基本情報
| 種別 | 事務所・店舗(物件番号:27375) | 
|---|---|
| 物件名 | 若杉東梅田ビル 阪急大阪梅田、東梅田駅徒歩圏内! | 
| 住所 | 大阪市北区堂山町18-2 | 
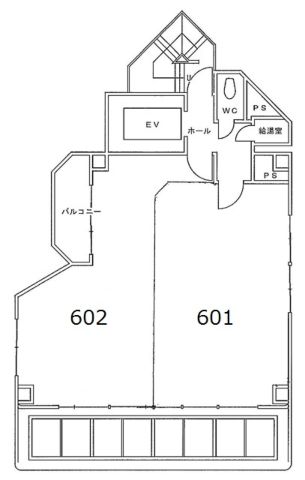
| 所在階 | 7階部分1号室 | 
| 契約面積 | 10.6 坪・ 35.05 ㎡ | 
| 最寄駅 | 谷町線                  『
                  東梅田                  』
                  6                  分 御堂筋線 『 梅田 』 8 分 | 
| 構造 | S(鉄骨)造 14階建 /地下 1 階 | 
| 築年数 | 1988/1 【新耐震基準】 (リニューアル: 2014/3 ) | 
| 設備 | |
| エレベーター | 1基 | 
| 営業マンの一言梅田エリアの中でも堂山町交差点より東へスグの立地は昼夜問わず多くの人が行き交う。特徴あるガラス面を配した外観の当ビルは、この立地を背景に、店舗としても事務所としてもアンテナショップとしての役割も担い、来店型のテナントニーズにマッチング。同じく、来店型に最適な1フロア1テナントの独立性も当ビルの大きな特徴。 阪急線「梅田」駅より徒歩4.5分 地下鉄谷町線「東梅田」駅より徒歩5分 地下鉄御堂筋線「梅田」駅より徒歩6分 阪神本線「梅田」駅より徒歩6分 JR環状線「大阪」駅より徒歩7分 | |
| 備考 | 貸し会議室 | 

※取引態様:仲介
            ※上記、金額は募集条件です。 条件交渉など、詳細についてはお問合せ下さい。
            ※広告作成中に契約済みの場合はご容赦下さい。
            ※図面等現況が相違する場合は現況優先にてご容赦下さい。
若杉東梅田ビルの所在地周辺
物件を再検索する
若杉東梅田ビル 関連物件
若杉東梅田ビル 近隣のよく似た坪数の貸事務所
- 
                    AXIS UMEDA BLD(アクシス梅田)大阪市北区神山町 
 谷町線「東梅田」徒歩4分
 12.8坪
- 
                    梅田辰巳ビル大阪市北区神山町 
 谷町線「東梅田」徒歩4分
 14.0坪
- 
                    北大阪東通りビル大阪市北区小松原町 
 谷町線「東梅田」徒歩3分
 12.7坪
- 
                    国道ビル~ラ・オカシオン大阪市北区曾根崎2 
 谷町線「東梅田」徒歩4分
 10.3坪
- 
                    御堂筋キタムラビル大阪市北区曾根崎2 
 谷町線「東梅田」徒歩2分
 12.5坪
- 
                    祥慶ビル大阪市北区太融寺町 
 谷町線「東梅田」徒歩5分
 10.0坪
- 
                    ニュープラザビル大阪市北区太融寺町 
 谷町線「東梅田」徒歩5分
 14.95坪
- 
                    エーワンビル大阪市北区太融寺町 
 谷町線「東梅田」徒歩2分
 12.4坪
- 
                    東梅田八千代ビル大阪市北区中崎西2 
 谷町線「東梅田」徒歩4分
 12.57坪
- 
                    プラザ梅新別館大阪市北区西天満4 
 谷町線「東梅田」徒歩8分
 14.38坪

 お問合せリスト・物件リクエスト
 お問合せリスト・物件リクエスト 電話でお問合せ
 電話でお問合せ



 
                  
                


 
                                   

































