国道ビル~ラ・オカシオン 7階-No.51155
中阪 浩之ナカサカ ヒロユキ
国道ビル~ラ・オカシオンの豆知識
「国道ビル~ラ・オカシオン~」は、大阪市北区曾根崎2丁目にございます、賃貸テナントビルです。
2014年2月にデザイナーズ・リノベーション完成!
美術館をイメージしたデザインで、レーザービームやグラフィックデザインなど遊び心満載のビル。
下層階がショップなどテナント向けフロア、上層階がオフィス仕様となっております。
貸室は、約7坪のスモールオフィスから50坪ほどの広さまで、フレキシブルな対応が可能です。
エレベーター2基、貸し会議室やコミュニティルーム、また喫煙室も設けられており、充実の設備が整っております。
多くのリノベーションを手掛けた実績から、テナント様の使い勝手の良さ・心地良さなど、多種多様なニーズに応えた企画・設計となっておりますので、ビジネス拠点として快適な空間が約束されております。
立地は、梅新東交差点の北西角地で視認性も抜群。
JR東西線の「北新地駅」より徒歩2分、地下鉄谷町線の「東梅田駅」より徒歩4分、御堂筋線など各「梅田駅」からは約7分の交通アクセスで、新事業の立ち上げは“梅田”という方には、おすすめの物件です。
国道ビル~ラ・オカシオン 基本情報
| 種別 | 事務所(物件番号:51155) |
|---|---|
| 物件名 | 国道ビル~ラ・オカシオン
デザイナーズにフルリノベーション済。梅新東交差点の角地という視認性抜群のランドマークビル 3階コミュニティルームは24時間利用可能 貸会議室(有料)も完備しております。 |
| 住所 | 大阪市北区曾根崎2-1-12 |
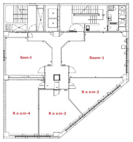
| 所在階 | 7階部分5号室 その他、貸室 |
| 契約面積 | 10.3 坪・ 34.05 ㎡ |
| 賃料 | 総額
196,600 円 (税抜)・坪単価
19,087 円/坪 (税抜) 総額 216,260 円(税含む) |
| 共益費 | 総額 30,000 円 (税抜)・坪単価 2,913 円/坪 (税抜) 総額 33,000 円 (税含む) |
| 月額合計 | 総額 226,600 円(税抜)・坪単価 22,000 円(税抜) 総額 249,260 円 (税含む) |
| 敷金 | 1ヶ月 |
| 礼金 | 2ヶ月 |
| 費用備考 | 賃貸保証加入要 |
| 最寄駅 |
谷町線 『
東梅田 』
4 分
御堂筋線 『 梅田 』 7 分 東西線 『 北新地 』 2 分 |
| 構造 | 鉄骨鉄筋コンクリート造 9階建 /地下 3 階 |
| 築年数 | 1964/1 (リニューアル: 2014/02 ) |
| 設備
|
|
| エレベーター | 2基 |
営業マンの一言 大阪メトロ谷町線 東梅田駅徒歩4分 JR線・阪急線・御堂筋線徒歩利用可能 国道1号線に面すデザイナーズビル。2014年リノベーション完成。貸し会議室・コミュニティールームなど共用設備も充実。視認性も抜群です。 |
|
| 備考 | 貸し会議室/リフレッシュルーム |

※取引態様:仲介
※上記、金額は募集条件です。 条件交渉など、詳細についてはお問合せ下さい。
※広告作成中に契約済みの場合はご容赦下さい。
※図面等現況が相違する場合は現況優先にてご容赦下さい。
国道ビル~ラ・オカシオンの所在地周辺
国道ビル~ラ・オカシオン その他の部屋情報
物件を再検索する
国道ビル~ラ・オカシオン 関連物件
国道ビル~ラ・オカシオン 近隣のよく似た坪数の貸事務所
-
フキヤビル
大阪市北区角田町
谷町線「東梅田」徒歩3分
12.7坪 -
梅田辰巳ビル
大阪市北区神山町
谷町線「東梅田」徒歩4分
14.0坪 -
北大阪東通りビル
大阪市北区小松原町
谷町線「東梅田」徒歩3分
12.7坪 -
御堂筋キタムラビル
大阪市北区曾根崎2
谷町線「東梅田」徒歩2分
12.5坪 -
祥慶ビル
大阪市北区太融寺町
谷町線「東梅田」徒歩5分
10.0坪 -
ニュープラザビル
大阪市北区太融寺町
谷町線「東梅田」徒歩5分
14.95坪 -
エーワンビル
大阪市北区太融寺町
谷町線「東梅田」徒歩2分
12.4坪 -
東梅田八千代ビル
大阪市北区中崎西2
谷町線「東梅田」徒歩4分
12.57坪 -
プラザ梅新別館
大阪市北区西天満4
谷町線「東梅田」徒歩8分
14.38坪 -
第三青山ビル
大阪市北区西天満4
谷町線「東梅田」徒歩7分
12.5坪


























