SD堺筋本町ビル(本町EAST) 4階-No.28079
SD堺筋本町ビル(本町EAST) 基本情報
| 種別 | 貸事務所(物件番号:28079) |
|---|---|
| 物件名 | SD堺筋本町ビル(本町EAST)
現状引き渡し・この貸室のみ坪単価6,000円! |
| 住所 | 大阪市中央区久太郎町1-9-5 |
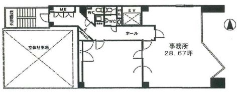
| 所在階 | 4階部分号室 その他、貸室 |
| 契約面積 | 31.8 坪・ 105.13 ㎡ |
| 賃料 | 総額
相談 (税抜)・坪単価
相談 (税抜) 総額 (税含む) |
| 共益費 | 総額 2,500 円 (税抜)・坪単価 79 円/坪 (税抜) 総額 2,750 円 (税含む) |
| 月額合計 | 総額 相談(税抜)・坪単価 (税抜) 総額 (税含む) |
| 敷金 | 8ヶ月 |
| 解約引 | 2ヶ月 |
| 最寄駅 |
堺筋線 『
堺筋本町 』
1 分
中央線 『 堺筋本町 』 1 分 |
| 構造 | S(鉄骨)造 10階建 /地下 1 階 |
| 築年数 | 1990/7 【新耐震基準】 |
| 設備
|
|
| エレベーター | 1基 6人乗 |
営業マンの一言 大阪・堺筋本町駅歩1分の賃貸オフィスビル「堺筋本町」駅徒歩1分の好立地、ワンフロアーワンテナント、格安区画有り。お問い合わせください。 |
|

※取引態様:仲介
※上記、金額は募集条件です。 条件交渉など、詳細についてはお問合せ下さい。
※広告作成中に契約済みの場合はご容赦下さい。
※図面等現況が相違する場合は現況優先にてご容赦下さい。
SD堺筋本町ビル(本町EAST)の所在地周辺
SD堺筋本町ビル(本町EAST) その他の部屋情報
物件を再検索する
SD堺筋本町ビル(本町EAST) 関連物件
SD堺筋本町ビル(本町EAST) 近隣のよく似た坪数の貸事務所
-
(仮称)本町一丁目PJ
大阪市中央区本町1
堺筋線「堺筋本町」徒歩3分
32.3坪 -
ハウザー堺筋本町駅前ビル
大阪市中央区安土町2
堺筋線「堺筋本町」徒歩0.5分
30.0坪 -
弘栄ビルディング
大阪市中央区淡路町2
堺筋線「堺筋本町」徒歩5分
34.34坪 -
CBMビル
大阪市中央区淡路町2
堺筋線「堺筋本町」徒歩4分
35.94坪 -
淡路町パークビル2号館
大阪市中央区淡路町2
堺筋線「堺筋本町」徒歩6分
33.65坪 -
三星SKビル
大阪市中央区北久宝寺町1
堺筋線「堺筋本町」徒歩3分
33.0坪 -
三星中央別館ビル
大阪市中央区久太郎町1
堺筋線「堺筋本町」徒歩2分
32.0坪 -
三栄ビル
大阪市中央区久太郎町1
堺筋線「堺筋本町」徒歩1分
32.97坪 -
船場ダイヤモンドビル
大阪市中央区久太郎町2
堺筋線「堺筋本町」徒歩1分
40.0坪 -
八木ビル
大阪市中央区久太郎町2
堺筋線「堺筋本町」徒歩1分
37.4坪













中阪 浩之













