新瓦町ビル 4階-No.55270
中阪 浩之ナカサカ ヒロユキ
新瓦町ビルの豆知識
「新瓦町ビル」は、大阪市中央区瓦町2丁目にございます賃貸事務所。
大阪ビジネス街中心地・本町に位置する、基準階面積が約330坪、地上8階建ての大型オフィスビルです。
1979年7月竣工、2009年5月にはリニューアルが完了。
シックでスタイリッシュな建物に生まれ変わりました。
耐震補強工事も実施済。
間口の広いビル構え、エントランスを入ってスグのスペースには、待ち合わせや商談も可能なソファスペース、エレベーター3基、駐車場併設など、安心・快適なオフィススペースが確保されています。
大阪市営地下鉄堺筋線の「堺筋本町駅」より徒歩4分。
大阪の大動脈・御堂筋線の「本町」や「淀屋橋」、「北浜駅」も、アクセス可能な交通至便です。
新瓦町ビル 基本情報
| 種別 | 貸事務所(物件番号:55270) |
|---|---|
| 物件名 | 新瓦町ビル |
| 住所 | 大阪市中央区瓦町2-4-7 |
| 所在階 | 4階部分号室 |
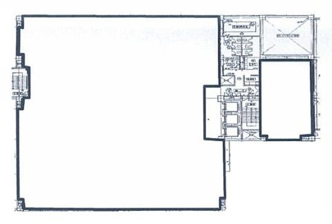
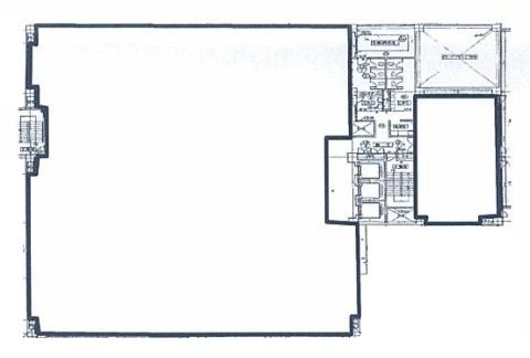
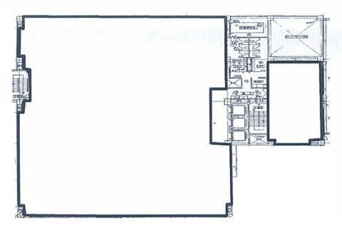
| 契約面積 | 122.07 坪・ 403.54 ㎡ |
| 賃料 | 総額
相談 (税抜)・坪単価
相談 (税抜) 総額 (税含む) |
| 共益費 | 総額 賃料に含む (税抜)・坪単価 賃料に含む (税抜) 総額 賃料に含む (税含む) |
| 月額合計 | 総額 相談(税抜)・坪単価 (税抜) 総額 (税含む) |
| 敷金 | 12ヶ月 |
| 解約引 | 無し |
| 最寄駅 |
堺筋線 『
堺筋本町 』
4 分
御堂筋線 『 本町 』 7 分 堺筋線 『 北浜 』 6 分 |
| 構造 | 鉄骨鉄筋コンクリート造 8階建 |
| 築年数 | 1979/7 (リニューアル: 耐震済 ) |
| 設備
|
|
| エレベーター | 3基 |
営業マンの一言 耐震補強工事済オフィス大阪ビジネスエリア本町の賃貸事務所ビル |
|
| 備考 | 免震・耐震補強/リフレッシュルーム |

※取引態様:仲介
※上記、金額は募集条件です。 条件交渉など、詳細についてはお問合せ下さい。
※広告作成中に契約済みの場合はご容赦下さい。
※図面等現況が相違する場合は現況優先にてご容赦下さい。
新瓦町ビルの所在地周辺
物件を再検索する
新瓦町ビル 近隣のよく似た坪数の貸事務所
-
本町DSビル
大阪市中央区安土町1
堺筋線「堺筋本町」徒歩2分
102.45坪 -
大永ビル
大阪市中央区安土町1
堺筋線「堺筋本町」徒歩1分
120.49坪 -
野村不動産大阪ビル
大阪市中央区安土町1
堺筋線「堺筋本町」徒歩1分
104.47坪 -
大阪国際ビルディング
大阪市中央区安土町2
堺筋線「堺筋本町」徒歩1分
101.41坪 -
本町明大ビル
大阪市中央区安土町2
堺筋線「堺筋本町」徒歩3分
127.0坪 -
クラボウアネックスビル
大阪市中央区久太郎町2
堺筋線「堺筋本町」徒歩1分
132.61坪 -
本町1丁目1棟貸
大阪市中央区本町1
堺筋線「堺筋本町」徒歩1分
120.91坪 -
オーク堺筋本町ビル
大阪市中央区本町1
堺筋線「堺筋本町」徒歩0分
140.65坪 -
堺筋本町センタービル
大阪市中央区本町2
堺筋線「堺筋本町」徒歩0.2分
108.56坪 -
船場旭ビル
大阪市中央区本町2
堺筋線「堺筋本町」徒歩1分
114.26坪




















