住友生命新大阪北ビル 4階-No.28818
住友生命新大阪北ビル その他の貸室情報
住友生命新大阪北ビル 基本情報
| 種別 | 貸事務所(物件番号:28818) |
|---|---|
| 物件名 | 住友生命新大阪北ビル |
| 住所 | 大阪市淀川区宮原4-1-14 |
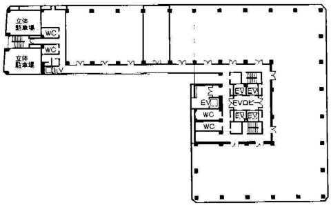
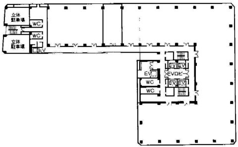
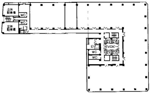
| 所在階 | 4階部分号室 |
| 契約面積 | 369.45 坪・ 1,221.33 ㎡ |
| 最寄駅 |
御堂筋線 『
新大阪 』
4 分
東海道本線 『 新大阪 』 7 分 |
| 構造 | 鉄骨鉄筋コンクリート造 13階建 /地下 1 階 |
| 築年数 | 1986/6 【新耐震基準】 |
| 設備
|
|
| エレベーター | 6基 |
営業マンの一言 新大阪駅徒歩スグの好立地。全館リニューアル済み。新大阪のランドマークオフィスの一角に建つ設備、管理充実のオフィスビルです。 |
|

※取引態様:仲介
※上記、金額は募集条件です。 条件交渉など、詳細についてはお問合せ下さい。
※広告作成中に契約済みの場合はご容赦下さい。
※図面等現況が相違する場合は現況優先にてご容赦下さい。
住友生命新大阪北ビルの所在地周辺
ストリートビューを表示▼
物件を再検索する
住友生命新大阪北ビル 関連物件
住友生命新大阪北ビル 近隣のよく似た坪数の貸事務所
-
新大阪第5アラタニビル
大阪市東淀川区西淡路1
御堂筋線「新大阪」徒歩10分
388.07坪 -
新大阪ブリックビル
大阪市淀川区宮原1
御堂筋線「新大阪」徒歩3分
239.0坪 -
新大阪トラストタワー
大阪市淀川区宮原3
御堂筋線「新大阪」徒歩3分
218.6坪






中阪 浩之






