丸丹ビル 4階-No.2911
中阪 浩之ナカサカ ヒロユキ
丸丹ビルの豆知識
「丸丹ビル」は、大阪市北区天神橋2丁目にございます、賃貸事務所ビル。
天神橋筋商店街と国道1号線からそれぞれひと筋入った角地にあります。
6階建の落ち着いた外観と1階にはコンビニエンスストアがございます。
大阪市営地下鉄・堺筋線または谷町線の「南森町駅」より徒歩2分。
JR東西線の「大阪天満宮駅」からも徒歩3分と、3WAYアクセスが可能な便利な交通アクセスです。
阪神高速の「南森町出入口」からも近く、フットワークの良いビジネス拠点。
貸室は、10~20坪のお部屋が中心ですので、新規独立・開業の方や、少人数の営業拠点に最適です。
近隣には、日本一長いことで有名な“天神橋筋商店街”や“大阪天満宮さん”があり、賑やかなエリア。
大阪№1都市“梅田”へもひと駅・約5分のアクセスは、効率のよいビジネスワークにオススメのロケーションです。
丸丹ビル 基本情報
| 種別 | 貸事務所(物件番号:2911) |
|---|---|
| 物件名 | 丸丹ビル |
| 住所 | 大阪市北区天神橋2-北1-23 |
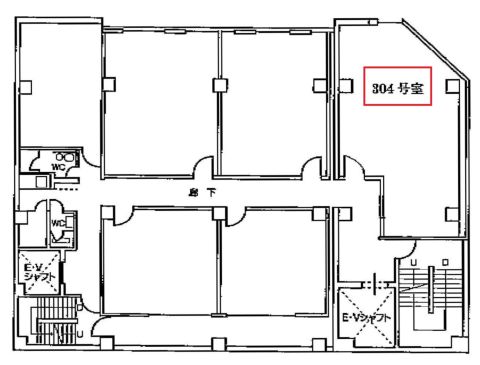
| 所在階 | 4階部分4号室 |
| 契約面積 | 17.5 坪・ 57.86 ㎡ |
| 最寄駅 |
堺筋線 『
南森町 』
2 分
東西線 『 大阪天満宮 』 3 分 |
| 構造 | 鉄筋コンクリート造 6階建 |
| 築年数 | / |
| 設備
|
|
| エレベーター | 2基 |
営業マンの一言 大阪南森町エリアの角ビル事務所天神橋筋商店街スグの好立地な賃貸オフィスビルです。 |
|

※取引態様:仲介
※上記、金額は募集条件です。 条件交渉など、詳細についてはお問合せ下さい。
※広告作成中に契約済みの場合はご容赦下さい。
※図面等現況が相違する場合は現況優先にてご容赦下さい。
丸丹ビルの所在地周辺
入居テナント
物件を再検索する
丸丹ビル 近隣のよく似た坪数の貸事務所
-
シティコーポ南森町
大阪市北区南森町2
堺筋線「南森町」徒歩1分
17.97坪 -
フジタビル (藤田ビル)
大阪市北区天神橋1
堺筋線「南森町」徒歩6分
15.0坪 -
K.D.K天満ビル
大阪市北区天神橋2
堺筋線「南森町」徒歩2分
15.8坪 -
MF南森町ビル
大阪市北区天神橋2
堺筋線「南森町」徒歩1分
16.77坪 -
千代田第一ビル
大阪市北区天神橋2
堺筋線「南森町」徒歩1分
18.07坪 -
若杉グランドビル本館
大阪市北区天神橋2
堺筋線「南森町」徒歩1分
18.2坪 -
ギャラリービル
大阪市北区天神橋2
堺筋線「南森町」徒歩2分
15.76坪 -
八千代ビル東館
大阪市北区天神橋2
堺筋線「南森町」徒歩1分
18.18坪 -
スリージェ南森町ビル
大阪市北区天神橋3
堺筋線「南森町」徒歩1分
19.5坪 -
サンワビル
大阪市北区同心2
堺筋線「南森町」徒歩10分
16.42坪



















