スリージェ南森町ビル 12階-No.39487
丹羽 美智子ニワミチコ
スリージェ南森町ビルの豆知識
「新日本南森町ビル」は、大阪市北区天神橋3丁目にございます、賃貸事務所ビル。
天神橋筋に面した、前面ガラス張りのインテリジェンスオフィス。
地下鉄谷町線・堺筋線の「南森町駅」より徒歩3分、JR東西線の「大阪天満宮駅」からも徒歩3分と、交通アクセスも大変良い立地です。
南森町は、大阪・梅田へ電車で1駅、東梅田エリアへは、徒歩でのアクセスも可能。
フットワーク抜群のオフィス拠点として、人気のエリアです。
さらに、「新日本南森町ビル」は、南森町交差点・りそな銀行さんから、天神橋筋沿いを北へ少し歩けば、スグ目につく視認性の高さも抜群。
来客の多い業種様(人材派遣業等)には、おすすめ物件。
ビルスペックは、エレベーター2基、24時間使用可能、機械警備、個別空調、男女別シャワートイレ、駐車場併設と、基本設備が充実しております。
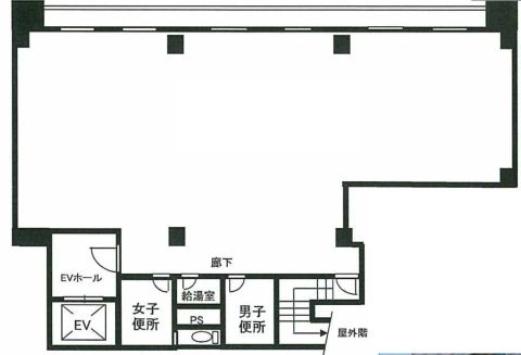
貸室面積は、ワンフロア約60坪超。
30~40坪台の分割プランもございますので、ご相談ください。
建物からスグ東には、日本一長い“天神橋筋商店街”がございます。
商都・大阪の活気あふれるパワーが、ビジネス効率UPにつながること、間違いなしです。
スリージェ南森町ビル 基本情報
| 種別 | 貸事務所(物件番号:39487) |
|---|---|
| 物件名 | スリージェ南森町ビル
外観ガラス張りのインテリジェンスなオフィスビル・24時間利用可・土日祝日利用可・共用部に男女別トイレ有 |
| 住所 | 大阪市北区天神橋3-2-10 |
| 所在階 | 12階部分B号室 |
| 契約面積 | 19.5 坪・ 64.47 ㎡ |
| 賃料 | 総額
200,000 円 (税抜)・坪単価
10,256 円/坪 (税抜) 総額 220,000 円(税含む) |
| 共益費 | 総額 60,000 円 (税抜)・坪単価 3,077 円/坪 (税抜) 総額 66,000 円 (税含む) |
| 月額合計 | 総額 260,000 円(税抜)・坪単価 13,333 円(税抜) 総額 286,000 円 (税含む) |
| 敷金 | 1,400,000 円 |
| 礼金 | 440,000円(税含む) |
| 最寄駅 |
堺筋線 『
南森町 』
1 分
谷町線 『 南森町 』 1 分 東西線 『 大阪城北詰 』 3 分 |
| 構造 | 鉄骨鉄筋コンクリート造 12階建 |
| 築年数 | 1991/12 【新耐震基準】 |
| 設備
|
|
| エレベーター | 2基 |
営業マンの一言 大通りに面し、南森町駅より徒歩3分のオフィス!大阪・天神橋筋に面したインテリジェンス賃貸事務所ビルです。 |
|

※取引態様:仲介
※上記、金額は募集条件です。 条件交渉など、詳細についてはお問合せ下さい。
※広告作成中に契約済みの場合はご容赦下さい。
※図面等現況が相違する場合は現況優先にてご容赦下さい。
スリージェ南森町ビルの所在地周辺
物件を再検索する
スリージェ南森町ビル 関連物件
スリージェ南森町ビル 近隣のよく似た坪数の貸事務所
-
シティコーポ南森町
大阪市北区南森町2
堺筋線「南森町」徒歩1分
17.97坪 -
フジタビル (藤田ビル)
大阪市北区天神橋1
堺筋線「南森町」徒歩6分
15.0坪 -
K.D.K天満ビル
大阪市北区天神橋2
堺筋線「南森町」徒歩2分
15.8坪 -
MF南森町ビル
大阪市北区天神橋2
堺筋線「南森町」徒歩1分
16.77坪 -
千代田第一ビル
大阪市北区天神橋2
堺筋線「南森町」徒歩1分
18.07坪 -
松原ビル
大阪市北区天神橋2
堺筋線「南森町」徒歩1分
15.0坪 -
若杉グランドビル本館
大阪市北区天神橋2
堺筋線「南森町」徒歩1分
18.2坪 -
ギャラリービル
大阪市北区天神橋2
堺筋線「南森町」徒歩2分
15.76坪 -
八千代ビル東館
大阪市北区天神橋2
堺筋線「南森町」徒歩1分
18.18坪 -
サンワビル
大阪市北区同心2
堺筋線「南森町」徒歩10分
16.42坪





















