第一協業ビル 5階-No.29144
第一協業ビル 基本情報
| 種別 | 貸事務所(物件番号:29144) |
|---|---|
| 物件名 | 第一協業ビル |
| 住所 | 大阪市西区阿波座1-15-15 |
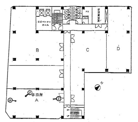
| 所在階 | 5階部分号室 |
| 契約面積 | 120.73 坪・ 399.11 ㎡ |
| 最寄駅 |
四ツ橋線 『
本町 』
5 分
中央線 『 本町 』 5 分 |
| 構造 | 鉄筋コンクリート造 9階建 |
| 築年数 | 1974/1 |
| 設備
|
|
| エレベーター | 2基 |
営業マンの一言 なにわ筋面す”大型ビル!!四ツ橋線 本町駅徒歩5分 人気の阿波座エリア 周辺にはコンビニ・飲食店あり 室内美装済 共用休憩所設置 |
|

※取引態様:仲介
※上記、金額は募集条件です。 条件交渉など、詳細についてはお問合せ下さい。
※広告作成中に契約済みの場合はご容赦下さい。
※図面等現況が相違する場合は現況優先にてご容赦下さい。
第一協業ビルの所在地周辺
ストリートビューを表示▼
物件を再検索する
第一協業ビル 近隣のよく似た坪数の貸事務所
-
野村不動産四ツ橋ビル
大阪市西区阿波座1
四ツ橋線「本町」徒歩2分
108.01坪 -
マツモト産業ビル
大阪市西区靱本町1
四ツ橋線「本町」徒歩1分
110.05坪






中阪 浩之




