BRAVE難波(ブレイブ難波) 2階-No.30003
BRAVE難波(ブレイブ難波) その他の貸室情報
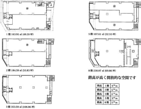
BRAVE難波(ブレイブ難波) 基本情報
| 種別 | 事務所・店舗(物件番号:30003) |
|---|---|
| 物件名 | BRAVE難波(ブレイブ難波) |
| 住所 | 大阪市中央区難波千日前15-15 |
| 所在階 | 2階部分号室 |
| 契約面積 | 55.83 坪・ 184.57 ㎡ |
| 最寄駅 |
御堂筋線 『
なんば 』
4 分
南海線 『 難波 』 1 分 千日前線 『 なんば 』 5 分 |
| 構造 | 鉄筋コンクリート造 8階建 /地下 1 階 |
| 築年数 | 2020/4 【新耐震基準】 |
| 設備
|
|
| エレベーター | 2基 |
営業マンの一言 大阪メトロ御堂筋線 なんば駅徒歩4分 南海線 なんば駅徒歩1分 近鉄線利用可能■エステ・美容室・クリニック向き■飲食店舗向き■物販向き |
|

※取引態様:仲介
※上記、金額は募集条件です。 条件交渉など、詳細についてはお問合せ下さい。
※広告作成中に契約済みの場合はご容赦下さい。
※図面等現況が相違する場合は現況優先にてご容赦下さい。
BRAVE難波(ブレイブ難波)の所在地周辺
ストリートビューを表示▼
物件を再検索する
BRAVE難波(ブレイブ難波) 関連物件
BRAVE難波(ブレイブ難波) 近隣のよく似た坪数の貸事務所
-
なんばパークスタワー
大阪市浪速区難波中2
御堂筋線「なんば」徒歩2分
58.76坪 -
太陽生命難波ビル
大阪市中央区難波2
御堂筋線「なんば」徒歩1分
50.01坪




中阪 浩之





