イワイビル 6階-No.3193
中阪 浩之ナカサカ ヒロユキ
イワイビルの豆知識
「イワイビル」は、大阪市北区西天満3丁目にございます、賃貸事務所ビル。
1987年築の7階建て、ベージュのタイル貼り外観が、きっちりした印象のオフィスビルです。
地下鉄堺筋線・谷町線の「南森町駅」より徒歩6分。
阪神高速の南森町入口・北浜出口より2分と、車でのアクセスも良い好立地。
エレベーター、アルソックの警備体制、駐車場、館内トランクルーム、貸し会議室、喫煙休憩所、駐輪場と、充実の設備が自慢の「イワイビル」。
中でも、電気が関西電力と直契約ですので、電気代が通常のビルに比べてお得です。
(一般的にオフィスビルの場合、キュービクル等で受電してから各テナントへ配電となります)
賃料とともに毎月掛るランニングコストが、抑えられるのは魅力的ですね。
貸室は、使いやすい10坪台のお部屋が中心。
東西に走る国道一号線と南北の天神橋筋が交差する“南森町界隈”。
周辺には、裁判所や法務局、税務署、銀行など多くあり、士業のオフィスに適したエリアです。
イワイビル 基本情報
| 種別 | 貸事務所(物件番号:3193) |
|---|---|
| 物件名 | イワイビル
トイレ・流し・ベランダ付きです |
| 住所 | 大阪市北区西天満3-4-4 |
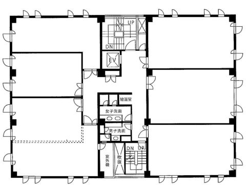
| 所在階 | 6階部分6号室 |
| 契約面積 | 14.7 坪・ 48.60 ㎡ |
| 最寄駅 |
堺筋線 『
南森町 』
5 分
東西線 『 大阪天満宮 』 6 分 堺筋線 『 北浜 』 7 分 |
| 構造 | 鉄筋コンクリート造 7階建 |
| 築年数 | 1987/1 【新耐震基準】 |
| 設備
|
|
| エレベーター | 1基 9人乗 |
営業マンの一言 郵便局隣接の好立地・管理良好・格調高いオフィスビルトランクルーム・貸会議室・喫煙所・駐車場・駐輪場など充実のビジネススペック。 |
|
| 備考 | 貸し会議室/リフレッシュルーム |

※取引態様:仲介
※上記、金額は募集条件です。 条件交渉など、詳細についてはお問合せ下さい。
※広告作成中に契約済みの場合はご容赦下さい。
※図面等現況が相違する場合は現況優先にてご容赦下さい。
イワイビルの所在地周辺
入居テナント
物件を再検索する
イワイビル 近隣のよく似た坪数の貸事務所
-
藤原ビル
大阪市北区南森町2
堺筋線「南森町」徒歩1分
12.87坪 -
伊沢ビル
大阪市北区紅梅町
堺筋線「南森町」徒歩2分
11.0坪 -
フジタビル (藤田ビル)
大阪市北区天神橋1
堺筋線「南森町」徒歩6分
15.0坪 -
キャビン天神橋ビル(ダイヨービル)
大阪市北区天神橋1
堺筋線「南森町」徒歩5分
11.5坪 -
K.D.K天満ビル
大阪市北区天神橋2
堺筋線「南森町」徒歩2分
13.96坪 -
千代田第一ビル
大阪市北区天神橋2
堺筋線「南森町」徒歩1分
11.63坪 -
ステップイン南森町ビル
大阪市北区天神橋2
堺筋線「南森町」徒歩1分
13.0坪 -
辻ビル
大阪市北区天神橋1
堺筋線「南森町」徒歩3分
14.1坪 -
第2東寺町ビル
大阪市北区同心1
堺筋線「南森町」徒歩8分
10.78坪 -
サンワビル
大阪市北区同心2
堺筋線「南森町」徒歩10分
10.24坪





























