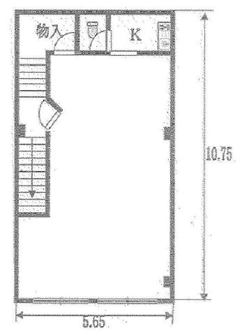
古澤ビル 2階-No.3195
営業スタッフ紹介
中阪 浩之ナカサカ ヒロユキ
古澤ビル 近隣のよく似た坪数の貸事務所
-
フジタビル (藤田ビル)
大阪市北区天神橋1
堺筋線「南森町」徒歩6分
15.0坪 -
ノースタワービル
大阪市北区天神橋1
堺筋線「南森町」徒歩5分
17.03坪 -
K.D.K天満ビル
大阪市北区天神橋2
堺筋線「南森町」徒歩2分
15.8坪 -
MF南森町ビル
大阪市北区天神橋2
堺筋線「南森町」徒歩1分
16.77坪 -
千代田第一ビル
大阪市北区天神橋2
堺筋線「南森町」徒歩1分
18.07坪 -
松原ビル
大阪市北区天神橋2
堺筋線「南森町」徒歩1分
15.0坪 -
若杉グランドビル本館
大阪市北区天神橋2
堺筋線「南森町」徒歩1分
18.2坪 -
ギャラリービル
大阪市北区天神橋2
堺筋線「南森町」徒歩2分
15.76坪 -
八千代ビル東館
大阪市北区天神橋2
堺筋線「南森町」徒歩1分
18.18坪 -
スリージェ南森町ビル
大阪市北区天神橋3
堺筋線「南森町」徒歩1分
19.5坪

















