アトレ三休平野ビル 4階-No.34874
丹羽 美智子ニワミチコ
アトレ三休平野ビルの豆知識
「三休橋筋平野町ビル」は、大阪市中央区平野町2丁目にございます、賃貸事務所・テナントビル。
御堂筋と堺筋の中間を通る“三休橋筋”の南東角地。
5階建てとコンパクトながら、黄色外壁がオシャレな視認性の高い建物です。
1階はドーナツ屋さんが入居。
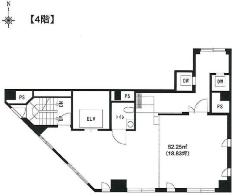
広さは約18坪のワンフロア貸し。
独立性重視の個人事務所はもちろん、店舗使用も可能。業種はご相談ください。
情緒あるガス燈と歩道の街路樹が整備された三休橋筋界隈は、その趣きある風情から人気のエリア。
大阪市営地下鉄御堂筋線の「淀屋橋」・「本町」、堺筋線の「北浜」・「堺筋本町」のちょうど真ん中にあたり、マルチアクセス可能な交通至便です。
アトレ三休平野ビル 基本情報
| 種別 | 貸事務所(物件番号:34874) |
|---|---|
| 物件名 | アトレ三休平野ビル |
| 住所 | 大阪市中央区平野町2-6-4 |
| 所在階 | 4階部分フロア号室 |
| 契約面積 | 18.75 坪・ 61.99 ㎡ |
| 最寄駅 |
御堂筋線 『
淀屋橋 』
6 分
堺筋線 『 北浜 』 6 分 御堂筋線 『 本町 』 6 分 |
| 構造 | 鉄骨造 5階建 |
| 築年数 | 1998/1 【新耐震基準】 |
| 設備
|
|
| エレベーター | 1基 |
営業マンの一言 大阪ビジネス街のワンフロア貸しオフィステナント三休橋筋面した角ビル ■エステ・美容室・クリニック向き |
|
| 備考 | オートロック |

※取引態様:仲介
※上記、金額は募集条件です。 条件交渉など、詳細についてはお問合せ下さい。
※広告作成中に契約済みの場合はご容赦下さい。
※図面等現況が相違する場合は現況優先にてご容赦下さい。
アトレ三休平野ビルの所在地周辺
物件を再検索する
アトレ三休平野ビル 関連物件
アトレ三休平野ビル 近隣のよく似た坪数の貸事務所
-
関電不動産梅田新道ビル
大阪市北区堂島1
御堂筋線「淀屋橋」徒歩4分
16.03坪 -
ユニシオ西天満二丁目
大阪市北区西天満2
御堂筋線「淀屋橋」徒歩7分
18.99坪 -
西天満ロイヤービル
大阪市北区西天満2
御堂筋線「淀屋橋」徒歩7分
17.24坪 -
北ビル3号館
大阪市北区西天満2
御堂筋線「淀屋橋」徒歩7分
15.73坪 -
幸田ビル(KOHDA BLDG.)
大阪市北区西天満2
御堂筋線「淀屋橋」徒歩5分
16.5坪 -
オーク西天満ビル
大阪市北区西天満2
御堂筋線「淀屋橋」徒歩5分
19.3坪 -
ヴェール中之島北
大阪市北区西天満4
御堂筋線「淀屋橋」徒歩7分
18.52坪 -
アーバネックス淀屋橋
大阪市中央区平野町3
御堂筋線「淀屋橋」徒歩4分
18.43坪 -
タカラ淀屋橋ビル
大阪市中央区北浜3
御堂筋線「淀屋橋」徒歩1分
17.56坪 -
松栄ビル(淀屋橋)
大阪市中央区北浜3
御堂筋線「淀屋橋」徒歩0.2分
16.29坪



























