本町 事務所・店舗 3階-No.35126
本町 事務所・店舗 基本情報
| 種別 | 事務所・店舗(物件番号:35126) |
|---|---|
| 物件名 | 本町 事務所・店舗 |
| 住所 | 大阪市中央区本町3 |
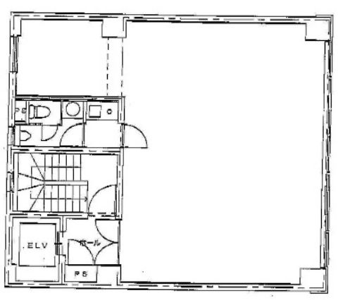
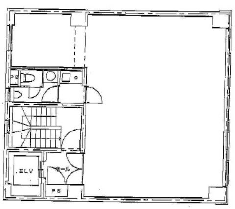
| 所在階 | 3階部分フロア号室 その他、貸室 |
| 契約面積 | 26.42 坪・ 87.34 ㎡ |
| 賃料 | 総額
277,410 円 (税抜)・坪単価
10,500 円/坪 (税抜) 総額 305,151 円(税含む) |
| 共益費 | 総額 賃料に含む (税抜)・坪単価 賃料に含む (税抜) 総額 賃料に含む (税含む) |
| 月額合計 | 総額 277,410 円(税抜)・坪単価 10,500 円(税抜) 総額 305,151 円 (税含む) |
| 保証金 | 3,328,920 円 |
| 解約引 | 相談 |
| 最寄駅 |
御堂筋線 『
本町 』
3 分
堺筋線 『 堺筋本町 』 3 分 中央線 『 本町 』 5 分 |
| 構造 | 鉄骨鉄筋コンクリート造 8階建 |
| 築年数 | 1984/12 【新耐震基準】 (リニューアル: 2011/1 ) |
| 設備
|
|
| エレベーター | 1基 |
営業マンの一言 三休橋筋面す。ワンフロア |
|

※取引態様:仲介
※上記、金額は募集条件です。 条件交渉など、詳細についてはお問合せ下さい。
※広告作成中に契約済みの場合はご容赦下さい。
※図面等現況が相違する場合は現況優先にてご容赦下さい。
本町 事務所・店舗の所在地周辺
同じビルの その他の部屋情報
物件を再検索する
本町 事務所・店舗 関連物件
本町 事務所・店舗 近隣のよく似た坪数の貸事務所
-
本町吉田ビル
大阪市西区阿波座1
御堂筋線「本町」徒歩2分
25.47坪 -
IENTO本町ビル(イエント本町)
大阪市中央区本町4
御堂筋線「本町」徒歩1分
29.29坪 -
中外ビル
大阪市中央区安土町3
御堂筋線「本町」徒歩1分
26.4坪 -
創建御堂筋ビル
大阪市中央区淡路町3
御堂筋線「本町」徒歩3分
28.43坪 -
瓦町スクエアビル
大阪市中央区瓦町2
御堂筋線「本町」徒歩6分
25.35坪 -
おおきにKOKODESU瓦町四丁目
大阪市中央区瓦町4
御堂筋線「本町」徒歩4分
28.13坪 -
南星瓦町ビル
大阪市中央区瓦町4
御堂筋線「本町」徒歩4分
27.56坪 -
本町コラボビル
大阪市中央区北久宝寺町4
御堂筋線「本町」徒歩3分
29.62坪 -
南本町エクセルビル
大阪市中央区久太郎町3
御堂筋線「本町」徒歩3分
26.94坪 -
オリックス久太郎町ビル(ORIX久太郎町ビル)
大阪市中央区久太郎町3
御堂筋線「本町」徒歩3分
26.88坪






中阪 浩之













