ビル皿井 7階-No.35778
丹羽 美智子ニワミチコ
ビル皿井の豆知識
「皿井ビル」は、大阪市中央区平野町2丁目にございます賃貸オフィスビル。
地下鉄堺筋線の「北浜駅」より徒歩3分、もちろん京阪本線の「北浜駅」からも徒歩6分、さらに御堂筋線の「淀屋橋駅」からは徒歩7分、「堺筋本町駅」からも徒歩圏内という、抜群の交通アクセスです。
“平野町”が、土佐堀通りと中央大通りの中間点にありますので、交通便も必然的に複数のアクセスが可能となります。
2012年に上層階を、コンパクトなデザイナーズオフィスにリノベーションしました。
約5坪~12坪ほどのオシャレで、快適なオフィス空間。
おひとり様、もしくは少人数でのご使用の来客の多い業種様に、大変人気が高い物件です。
堺筋の平野町1の交差点南西角にある、重厚な趣の“生駒ビルヂング”さん。
その西隣に「皿井ビル」がございますので、視認性にもすぐれています。
“生駒ビルヂング”は、昭和5年に建てられた、大阪を代表する近代名建築のひとつで、国の登録有形文化財に指定されています。
スクラッチタイルとテラコッタを使用したアールデコ調の建物。
屋上の時計塔と出窓が振り子時計のデザインとなっています。
他にも、エントランス等にある鷲の彫刻、1階の大理石の階段とステンドグラスなど、どれも大変すばらしくものばかりです。
ビル皿井 基本情報
| 種別 | 事務所(物件番号:35778) |
|---|---|
| 物件名 | ビル皿井 |
| 住所 | 大阪市中央区平野町2-2-9 |
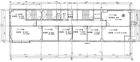
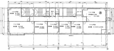
| 所在階 | 7階部分6号室 その他、貸室 |
| 契約面積 | 5.01 坪・ 16.57 ㎡ |
| 賃料 | 総額
34,068 円 (税抜)・坪単価
6,800 円/坪 (税抜) 総額 37,475 円(税含む) |
| 共益費 | 総額 15,030 円 (税抜)・坪単価 3,000 円/坪 (税抜) 総額 16,533 円 (税含む) |
| 月額合計 | 総額 49,098 円(税抜)・坪単価 9,800 円(税抜) 総額 54,008 円 (税含む) |
| 敷金 | 250,000 円 |
| 解約引 | 全額返金 |
| 費用備考 | 賃貸保証加入要/火災保険加入要/その他諸費用あり |
| 最寄駅 |
堺筋線 『
北浜 』
2 分
御堂筋線 『 淀屋橋 』 7 分 京阪本線 『 北浜 』 4 分 |
| 構造 | 鉄筋コンクリート造 8階建 |
| 築年数 | 1977/1 (リニューアル: 2012年 ) |
| 設備
|
|
| エレベーター | 1基 |
営業マンの一言 リノベーション&コンパクトオフィス北浜駅直ぐの平野町通りに面したスモール賃貸オフィスがオシャレにリノベーション! |
|

※取引態様:仲介
※上記、金額は募集条件です。 条件交渉など、詳細についてはお問合せ下さい。
※広告作成中に契約済みの場合はご容赦下さい。
※図面等現況が相違する場合は現況優先にてご容赦下さい。
ビル皿井の所在地周辺
ビル皿井 その他の部屋情報
| 階 | 号室 | 坪数 | ㎡数 | 賃料 | 共益費 | 敷金 | |
|---|---|---|---|---|---|---|---|
| 3階 | 1 | 27.95坪 | 92.40㎡ | 215,215 円 | 83,850 円 | 1,500,000 円 | ![]() |
| 3階 | 2 | 10.67坪 | 35.28㎡ | 72,556 円 | 32,010 円 | 400,000 円 | ![]() |
| 7階 | 8 | 7.67坪 | 25.36㎡ | 53,690 円 | 21,476 円 | 300,000 円 | ![]() |
物件を再検索する
ビル皿井 近隣のよく似た坪数の貸事務所
-
大阪JAビル
大阪市北区西天満1
堺筋線「北浜」徒歩3分
10.0坪 -
樋上ビル
大阪市北区西天満1
堺筋線「北浜」徒歩5分
9.12坪 -
西天満USUIビル
大阪市北区西天満1
堺筋線「北浜」徒歩3分
6.0坪 -
老松コーポ
大阪市北区西天満3
堺筋線「北浜」徒歩4分
9.71坪 -
大三ビル
大阪市北区西天満3
堺筋線「北浜」徒歩6分
7.99坪 -
エイワビル
大阪市中央区淡路町1
堺筋線「北浜」徒歩6分
8.47坪 -
堺筋千島ビル
大阪市中央区淡路町2
堺筋線「北浜」徒歩3分
9.4坪 -
Y’s Kitahama(ワイズキタハマ)
大阪市中央区今橋1
堺筋線「北浜」徒歩1分
9.43坪 -
北浜三ツ星ビル
大阪市中央区北浜1
堺筋線「北浜」徒歩1分
7.05坪 -
北浜近商ビル
大阪市中央区北浜1
堺筋線「北浜」徒歩3分
6.5坪


































