サクマビル 9階-No.36515
堀中 忠久ホリナカ タダヒサ
サクマビルの豆知識
「サクマビル」は、大阪市中央区南新町1丁目にございます賃貸事務所。
大阪府警や合同庁舎が集まるエリアから、谷町筋を挟んで西側に位置する、9階建てオフィスビル。
大阪城公園や難波宮跡公園、大阪歴史博物館、学校等が近く、環境の良いビジネス拠点です。
1984年竣工以来、こまめにバージョンアップ・メンテナンスされた管理の良いビルスペックが、入居テナント様のビジネスを強力にサポート。
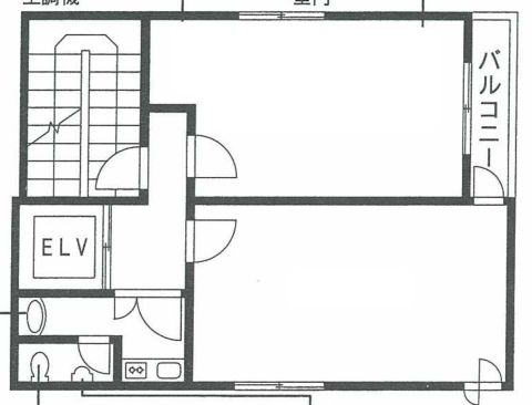
南向き貸室は、前面道路幅も広く、明るく快適なオフィススペースです。
大阪市営地下鉄・谷町線・中央線の「谷町四丁目駅」4番出入口より徒歩2分の交通アクセスです。
サクマビル 基本情報
| 種別 | 貸事務所(物件番号:36515) |
|---|---|
| 物件名 | サクマビル
最上階・道路に面した明るいオフィス・EVリニューアル・エントランス改修 |
| 住所 | 大阪市中央区南新町1-1-1 |
| 所在階 | 9階部分フロア号室 |
| 契約面積 | 18.18 坪・ 60.10 ㎡ |
| 最寄駅 |
谷町線 『
谷町四丁目 』
2 分
中央線 『 谷町四丁目 』 2 分 |
| 構造 | 鉄骨鉄筋コンクリート造 9階建 |
| 築年数 | 1984/11 【新耐震基準】 |
| 設備
|
|
| エレベーター | 1基 |
営業マンの一言 大阪・谷町4丁目の管理良好の貸オフィス、共用部照明はLED。大阪メトロ谷町線 谷町四丁目駅徒歩2分 谷四エリアの明るい賃貸事務所ビルです 機械警備・個別空調・24時間ご利用可能 1984年竣工新耐震基準建物です。 |
|

※取引態様:仲介
※上記、金額は募集条件です。 条件交渉など、詳細についてはお問合せ下さい。
※広告作成中に契約済みの場合はご容赦下さい。
※図面等現況が相違する場合は現況優先にてご容赦下さい。
サクマビルの所在地周辺
物件を再検索する
サクマビル 近隣のよく似た坪数の貸事務所
-
内本町B&Mビル
大阪市中央区内本町1
谷町線「谷町四丁目」徒歩1分
17.08坪 -
五苑第二ビル
大阪市中央区内本町1
谷町線「谷町四丁目」徒歩1分
15.0坪 -
寿ビル
大阪市中央区内本町1
谷町線「谷町四丁目」徒歩2分
18.0坪 -
ストークNEビル
大阪市中央区内本町2
谷町線「谷町四丁目」徒歩6分
18.24坪 -
ダイアパレスビル本町
大阪市中央区内本町2
谷町線「谷町四丁目」徒歩5分
19.37坪 -
レイズ大手前ビル
大阪市中央区北新町
谷町線「谷町四丁目」徒歩3分
15.02坪 -
KTTビルⅡ
大阪市中央区北新町
谷町線「谷町四丁目」徒歩5分
19.4坪 -
大晋第2ビル
大阪市中央区谷町3
谷町線「谷町四丁目」徒歩1分
20.0坪 -
エフクレスト
大阪市中央区谷町4
谷町線「谷町四丁目」徒歩1分
18.9坪 -
谷町細見ビル
大阪市中央区常盤町1
谷町線「谷町四丁目」徒歩1分
16.76坪

















