まるみやビル 6階-No.3808
中阪 浩之ナカサカ ヒロユキ
まるみやビルの豆知識
「まるみやビル」は、大阪市淀川区西中島4丁目にございます、賃貸事務所ビル。
ビルらしいカッチリした構えの8階建て。
大阪市営地下鉄・御堂筋線の「西中島南方駅」より徒歩4分。
「新大阪駅」からも、徒歩7分の交通アクセスです。
“新大阪”は、大阪市内はもちろん、新幹線・空港利用と、各都市へのフットワークの良さが人気のビジネス拠点。
それら好立地にプラスして、「まるみやビル」は、エレベーター2基、個別空調、機械警備、駐車場とビルスペックが充実。
また角ビルですので、90%以上のお部屋で自然採光がとれ、快適なワークスペースが確保されています。
貸室面積は、約9坪からございます。
少人数の企業様で、新大阪エリアのオフィス開設・移転をお考え方、必見の賃貸事務所物件です。
まるみやビル その他の貸室情報
| 階 | 号室 | 坪数 | ㎡数 | 賃料 | 共益費 | 敷金 | |
|---|---|---|---|---|---|---|---|
| 5階 | 1-5 | 36.01坪 | 119.05㎡ | 252,070 円 | 108,030 円 | 3,601,000 円 | ![]() |
| 5階 | 510-3 | 54.5坪 | 180.17㎡ | 381,500 円 | 163,500 円 | 5,450,000 円 | ![]() |
まるみやビル 基本情報
| 種別 | 貸事務所(物件番号:3808) |
|---|---|
| 物件名 | まるみやビル |
| 住所 | 大阪市淀川区西中島4-7-18 |
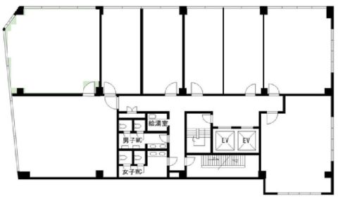
| 所在階 | 6階部分1-2号室 |
| 契約面積 | 18.11 坪・ 59.87 ㎡ |
| 最寄駅 |
御堂筋線 『
西中島南方 』
4 分
御堂筋線 『 新大阪 』 7 分 |
| 構造 | 鉄骨鉄筋コンクリート造 8階建 |
| 築年数 | 1990/1 【新耐震基準】 |
| 設備
|
|
| エレベーター | 2基 |
営業マンの一言 角ビルです。新大阪エリアの賃貸事務所ビル 機械警備・個別空調・24時間利用可能 管理充実 |
|

※取引態様:仲介
※上記、金額は募集条件です。 条件交渉など、詳細についてはお問合せ下さい。
※広告作成中に契約済みの場合はご容赦下さい。
※図面等現況が相違する場合は現況優先にてご容赦下さい。
まるみやビルの所在地周辺
物件を再検索する
まるみやビル 近隣のよく似た坪数の貸事務所
-
甲東ビル
大阪市淀川区木川東2
御堂筋線「西中島南方」徒歩5分
16.77坪 -
K2-EAST
大阪市淀川区木川東2
御堂筋線「西中島南方」徒歩5分
15.1坪 -
ミツフ第2ビル
大阪市淀川区木川東3
御堂筋線「西中島南方」徒歩5分
15.0坪 -
中村第2ビル
大阪市淀川区木川東3
御堂筋線「西中島南方」徒歩10分
19.73坪 -
第5丸善ビル
大阪市淀川区木川東3
御堂筋線「西中島南方」徒歩8分
16.89坪 -
メゾン淀川 (スモールオフィス)
大阪市淀川区西中島1
御堂筋線「西中島南方」徒歩2分
18.43坪 -
アルバート新大阪ビル
大阪市淀川区西中島1
御堂筋線「西中島南方」徒歩4分
15.6坪 -
大協シャトービル
大阪市淀川区西中島1
御堂筋線「西中島南方」徒歩3分
20.0坪 -
プロジェクトビル
大阪市淀川区西中島3
御堂筋線「西中島南方」徒歩4分
16.49坪 -
プラネットビル
大阪市淀川区西中島3
御堂筋線「西中島南方」徒歩3分
15.04坪





















