オーツグランドビル 7階-No.39283
丹羽 美智子ニワミチコ
オーツグランドビルの豆知識
「オーツグランドビル」は、大阪市中央区博労町4丁目にございます、賃貸事務所ビルです。
博労町は中央大通りと長堀通りのちょうど中間に位置しますので、交通アクセスも大阪メトロ・御堂筋線の「本町駅」と「心斎橋駅」の両方の利用が可能な、フットワークの良いオフィス。
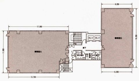
9階建ての建物ですが、基準階面積約100坪弱あり、東西双方とも道路に面しています。
中央部にエレベーターやトイレなどの水廻りを配置した、ワンフロアに2室のセンターコアタイプ。
それぞれの貸室の独立性が確保された、使いやすい設計です。
整然とした美しい外観と、エレベーター2基、OAフロア、個別空調、男女別シャワートイレなど、充実した設備。
貸室内の照明もLEDに改装され、人に環境に優しい快適な空間。
本町方面は、大阪ビジネスの中心地として多くの企業が集まり、南側の心斎橋・南船場界隈はオシャレなショップやカフェ・レストランが並び、賑やかなエリアです。
オーツグランドビル 基本情報
| 種別 | 貸事務所(物件番号:39283) |
|---|---|
| 物件名 | オーツグランドビル
独立性が確保されたビジネス空間です |
| 住所 | 大阪市中央区博労町4-3-2 |
| 所在階 | 7階部分号室 |
| 契約面積 | 53.5 坪・ 176.86 ㎡ |
| 賃料 | 総額
722,250 円 (税抜)・坪単価
13,500 円/坪 (税抜) 総額 794,475 円(税含む) |
| 共益費 | 総額 賃料に含む (税抜)・坪単価 賃料に含む (税抜) 総額 賃料に含む (税含む) |
| 月額合計 | 総額 722,250 円(税抜)・坪単価 13,500 円(税抜) 総額 794,475 円 (税含む) |
| 保証金 | 12ヶ月 |
| 解約引 | スライド |
| 最寄駅 |
御堂筋線 『
心斎橋 』
3 分
四ツ橋線 『 四ツ橋 』 4 分 御堂筋線 『 本町 』 4 分 |
| 構造 | 鉄骨鉄筋コンクリート造 9階建 /地下 2 階 |
| 築年数 | 1944/4 |
| 設備
|
|
| エレベーター | 2基 9人乗 |
営業マンの一言 LED照明&駐輪場&倉庫有ります!御堂筋線 心斎橋駅徒歩3分 本町駅も利用可能 1944年竣工新耐震基準建物 心斎橋・南船場のハイグレード賃貸ビルです。 |
|

※取引態様:仲介
※上記、金額は募集条件です。 条件交渉など、詳細についてはお問合せ下さい。
※広告作成中に契約済みの場合はご容赦下さい。
※図面等現況が相違する場合は現況優先にてご容赦下さい。
オーツグランドビルの所在地周辺
物件を再検索する
オーツグランドビル 関連物件
オーツグランドビル 近隣のよく似た坪数の貸事務所
-
船場心斎橋筋FUKU BLD.
大阪市中央区博労町3
御堂筋線「心斎橋」徒歩5分
53.38坪 -
波多野ビル
大阪市中央区博労町4
御堂筋線「心斎橋」徒歩4分
50.97坪 -
燕京ビル
大阪市中央区心斎橋筋1
御堂筋線「心斎橋」徒歩1分
50.0坪 -
大京心斎橋第2ビル
大阪市中央区西心斎橋1
御堂筋線「心斎橋」徒歩3分
50.0坪 -
三栄心斎橋ビル
大阪市中央区西心斎橋1
御堂筋線「心斎橋」徒歩2分
51.57坪 -
心斎橋アサノビル
大阪市中央区西心斎橋1
御堂筋線「心斎橋」徒歩2分
59.41坪 -
心斎橋W-Place
大阪市中央区西心斎橋2
御堂筋線「心斎橋」徒歩3分
51.15坪 -
アクロスビル
大阪市中央区心斎橋筋2
御堂筋線「心斎橋」徒歩5分
51.6坪 -
ラースティング心斎橋ビル
大阪市中央区東心斎橋1
御堂筋線「心斎橋」徒歩4分
56.96坪 -
ローズハウス
大阪市中央区東心斎橋1
御堂筋線「心斎橋」徒歩2分
50.3坪





























