日生ビル東館 8階-No.42677
堀中 忠久ホリナカ タダヒサ
日生ビル東館の豆知識
「日生ビル東館」は、大阪市北区芝田2丁目にございます、賃貸テナント事務所ビル。
“芝田2丁目”は、グランフロント大阪やヨドバシ梅田に隣接した、大阪で一番の注目エリア。
中でも「日生ビル東館」は、重厚感のある外観で視認性も抜群。
ワンフロア100坪と超える規模のビルでありながら、10坪台の使いやすい面積に分割した貸室もあり、個人様や少人数の企業様に人気の賃貸物件です。
また、別途費用は掛かりますが、袖看板や壁面看板を出すことができます。
平日・休日を問わず、かなりの人通りがございますので、コストパフォーマンスの高いPR広告宣伝になります。
交通アクセスの良さと注目度の高さで、商業地としてだけでなく、オフィス拠点としても抜群の人気を誇る“梅田”。
グランフロント大阪に代表されるように、最新設備を備えたハイスペックな賃貸オフォスビルが続々と誕生しておりますが、どれも貸室面積100坪単位が中心となり、また賃料相場・審査等もハイレベルになります。
梅田に会社オフィスの拠点を置きたいが、ハイスペックビルまではちょっと・・・と、思案中の方。
是非「日生ビル東館」をご検討ください。
日生ビル東館 基本情報
| 種別 | 貸事務所(物件番号:42677) |
|---|---|
| 物件名 | 日生ビル東館 |
| 住所 | 大阪市北区芝田2-2-13 |
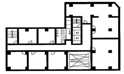
| 所在階 | 8階部分1号室 その他、貸室 |
| 契約面積 | 18.22 坪・ 60.24 ㎡ |
| 賃料 | 総額
273,300 円 (税抜)・坪単価
15,000 円/坪 (税抜) 総額 300,630 円(税含む) |
| 共益費 | 総額 54,660 円 (税抜)・坪単価 3,000 円/坪 (税抜) 総額 60,126 円 (税含む) |
| 月額合計 | 総額 327,960 円(税抜)・坪単価 18,000 円(税抜) 総額 360,756 円 (税含む) |
| 敷金 | 無し |
| 礼金 | 601,260円(税含む) |
| 費用備考 | 賃貸保証加入要/その他諸費用あり |
| 最寄駅 |
御堂筋線 『
梅田 』
3 分
阪急線 『 梅田 』 3 分 環状線 『 大阪 』 2 分 |
| 構造 | 鉄筋コンクリート造 8階建 /地下 1 階 |
| 築年数 | 1981/3 (リニューアル: 済 ) |
| 設備
|
|
| エレベーター | 2基 11人乗 |
営業マンの一言 大阪駅徒歩2分 好立地!御堂筋線 梅田駅徒歩3分 阪急線、JR線利用可能 ヨドバシカメラ近くの超一等地 周辺には銀行、コンビニ、飲食店など多数入居しております。 |
|

※取引態様:仲介
※上記、金額は募集条件です。 条件交渉など、詳細についてはお問合せ下さい。
※広告作成中に契約済みの場合はご容赦下さい。
※図面等現況が相違する場合は現況優先にてご容赦下さい。
日生ビル東館の所在地周辺
日生ビル東館 その他の部屋情報
物件を再検索する
日生ビル東館 近隣のよく似た坪数の貸事務所
-
大阪駅前第3ビル
大阪市北区梅田1
御堂筋線「梅田」徒歩4分
18.69坪 -
大阪駅前第2ビル
大阪市北区梅田1
御堂筋線「梅田」徒歩5分
18.35坪 -
大阪駅前第4ビル
大阪市北区梅田1
御堂筋線「梅田」徒歩3分
15.08坪 -
E-ma(イーマ)
大阪市北区梅田1
御堂筋線「梅田」徒歩2分
18.86坪 -
北阪急ビル
大阪市北区芝田1
御堂筋線「梅田」徒歩2分
15.0坪 -
備後屋ビル
大阪市北区芝田1
御堂筋線「梅田」徒歩5分
19.31坪 -
山中ビル
大阪市北区芝田1
御堂筋線「梅田」徒歩4分
20.0坪 -
梅田和光ビル
大阪市北区芝田2
御堂筋線「梅田」徒歩3分
16.33坪 -
東洋ビル別館
大阪市北区芝田2
御堂筋線「梅田」徒歩3分
18.42坪 -
梅田滋賀ビル
大阪市北区曾根崎新地1
御堂筋線「梅田」徒歩6分
19.96坪


































