大和地所南森町ビル(旧:新日本曾根崎) 8階-No.42968
中阪 浩之ナカサカ ヒロユキ
大和地所南森町ビル(旧:新日本曾根崎)の豆知識
「新日本曽根崎ビル」は、大阪市北区西天満5丁目にございます、賃貸事務所ビル。
曽根崎通り(国道1号線)に面した角ビルで、視認性の高い建物です。
大阪市営地下鉄谷町線・堺筋線の「南森町駅」より徒歩2分、JR東西線の「大阪天満宮駅」より徒歩4分ですが、曽根崎通を西へ進めば、「北新地駅」まで8分、谷町線の「東梅田駅」まで10分で歩くことが可能。
そうです!梅田エリアが、徒歩圏内の好ロケーション。
阪神高速出入口も近くにございますので、車のアクセスも良好。
大阪市内だけでなく、近郊都市へのフットワークも良く、梅田エリアと比較すると賃貸条件も割安感があり、ビジネス拠点としておすすめの賃貸物件です。
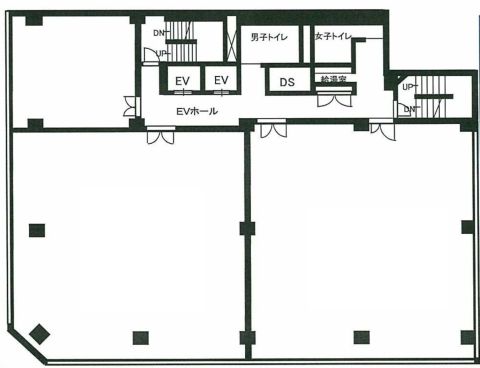
ワンフロアの面積は約200坪ほどございますが、20坪~の分割したフロアもございます。
角ビルのため、小規模の貸室でも、自然採光を確保でき、明るく・快適なオフィス空間です。
リニューアルもしており、エレベーター2基、個別空調、機械警備、男女別シャワートイレ、駐車場併設と、ビルスペックも充実しております。
OAフロア未対応のお部屋は、ご相談できます。但し、あまり天井高がございませんので、現地をご確認の上、ご相談くださいませ。
大和地所南森町ビル(旧:新日本曾根崎) 基本情報
| 種別 | 貸事務所(物件番号:42968) |
|---|---|
| 物件名 | 大和地所南森町ビル(旧:新日本曾根崎)
定借3年・再契約料新賃料1カ月 |
| 住所 | 大阪市北区西天満5-1-9 |
| 所在階 | 8階部分2A号室 その他、貸室 |
| 契約面積 | 61.56 坪・ 203.51 ㎡ |
| 賃料 | 総額
357,048 円 (税抜)・坪単価
5,800 円/坪 (税抜) 総額 392,753 円(税含む) |
| 共益費 | 総額 123,120 円 (税抜)・坪単価 2,000 円/坪 (税抜) 総額 135,432 円 (税含む) |
| 月額合計 | 総額 480,168 円(税抜)・坪単価 7,800 円(税抜) 総額 528,185 円 (税含む) |
| 敷金 | 6ヶ月 |
| 解約引 | 無し |
| 最寄駅 |
堺筋線 『
南森町 』
2 分
東西線 『 大阪天満宮 』 4 分 谷町線 『 東梅田 』 10 分 |
| 構造 | 鉄骨鉄筋コンクリート造 9階建 /地下 1 階 |
| 築年数 | 1972/1 (リニューアル: 1998/01 ) |
| 設備
|
|
| エレベーター | 2基 |
営業マンの一言 南森町エリア・リニューアル済貸しオフィス。大阪・国道1号線に面した視認性のある賃貸事務所ビルです。 |
|

※取引態様:仲介
※上記、金額は募集条件です。 条件交渉など、詳細についてはお問合せ下さい。
※広告作成中に契約済みの場合はご容赦下さい。
※図面等現況が相違する場合は現況優先にてご容赦下さい。
大和地所南森町ビル(旧:新日本曾根崎)の所在地周辺
大和地所南森町ビル(旧:新日本曾根崎) その他の部屋情報
| 階 | 号室 | 坪数 | ㎡数 | 賃料 | 共益費 | 敷金 | |
|---|---|---|---|---|---|---|---|
| 5階 | 74.03坪 | 244.73㎡ | 429,374 円 | 148,060 円 | 6ヶ月 | ![]() |
|
| 8階 | 61.56坪 | 203.51㎡ | 357,048 円 | 123,120 円 | 6ヶ月 | ![]() |













