新大阪サンアールビル北館 6階-No.4319
堀中 忠久ホリナカ タダヒサ
新大阪サンアールビル北館の豆知識
「新大阪サンアールビル北館」は、大阪市淀川区西中島5丁目にございます、賃貸事務所ビル。
1985年竣工、基準階面積が約205坪の10階建てオフィス。
2016年4月には、外壁・エントランスなどのリニューアルが完了。秋には、エレベーターのリニューアルも予定しており、管理良好なさらに快適な大阪ビジネス拠点に生まれ変わります。
貸室は20~30坪の広さが中心ですが、10坪以下の部屋もあり、少人数の大阪営業所にもオススメ。
大阪市内のみならず、各都市から大阪の玄関口となる“新大阪”は、交通アクセスの良いエリア。
JR新幹線、地下鉄御堂筋線の「新大阪駅」より徒歩5分です。
新大阪サンアールビル北館 その他の貸室情報
| 階 | 号室 | 坪数 | ㎡数 | 賃料 | 共益費 | 保証金 | |
|---|---|---|---|---|---|---|---|
| 4階 | 7 | 2.63坪 | 8.70㎡ | 45,000 円 | 72,420 円 | 6ヶ月 | ![]() |
| 5階 | 8 | 8.12坪 | 26.85㎡ | 64,960 円 | 24,360 円 | 535,920 円 | ![]() |
新大阪サンアールビル北館 基本情報
| 種別 | 貸事務所(物件番号:4319) |
|---|---|
| 物件名 | 新大阪サンアールビル北館 |
| 住所 | 大阪市淀川区西中島5-8-3 |
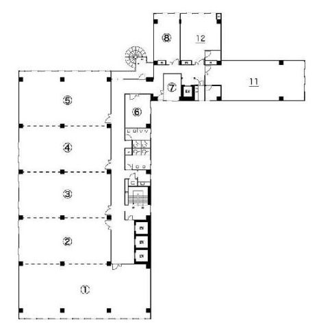
| 所在階 | 6階部分号室 |
| 契約面積 | 24.14 坪・ 79.81 ㎡ |
| 最寄駅 |
御堂筋線 『
新大阪 』
4 分
御堂筋線 『 西中島南方 』 5 分 |
| 構造 | 鉄骨鉄筋コンクリート造 10階建 |
| 築年数 | 1985/10 【新耐震基準】 (リニューアル: 2016/04 ) |
| 設備
|
|
| エレベーター | 3基 |
営業マンの一言 新大阪の賃貸事務所ビル2016年4月リニューアルの賃貸オフィスビル |
|

※取引態様:仲介
※上記、金額は募集条件です。 条件交渉など、詳細についてはお問合せ下さい。
※広告作成中に契約済みの場合はご容赦下さい。
※図面等現況が相違する場合は現況優先にてご容赦下さい。
新大阪サンアールビル北館の所在地周辺
入居テナント
物件を再検索する
新大阪サンアールビル北館 関連物件
新大阪サンアールビル北館 近隣のよく似た坪数の貸事務所
-
新大阪ビル東館
大阪市東淀川区東中島1
御堂筋線「新大阪」徒歩3分
22.15坪 -
LUCID SQUARE新大阪(ルーシッドスクエア)
大阪市東淀川区東中島1
御堂筋線「新大阪」徒歩5分
24.68坪 -
東口ステーションビル
大阪市東淀川区東中島1
御堂筋線「新大阪」徒歩1分
24.52坪 -
新大阪駅前ビル(旧:サムティ新大阪)
大阪市東淀川区東中島2
御堂筋線「新大阪」徒歩8分
22.96坪 -
新大阪御幸ビル
大阪市淀川区西中島5
御堂筋線「新大阪」徒歩5分
23.41坪 -
OHSACHI新大阪 ビル
大阪市淀川区西中島5
御堂筋線「新大阪」徒歩5分
20.93坪 -
興北ビル
大阪市淀川区西中島7
御堂筋線「新大阪」徒歩3分
22.7坪 -
オリエンタル新大阪ビル
大阪市淀川区西中島7
御堂筋線「新大阪」徒歩2分
23.01坪 -
新大阪ドイビル
大阪市淀川区西中島7
御堂筋線「新大阪」徒歩3分
22.8坪 -
新大阪ビル西館
大阪市淀川区西中島7
御堂筋線「新大阪」徒歩2分
21.69坪




















