中博ビル(ナカヒロ) 5階-No.43955
中博ビル(ナカヒロ) 基本情報
| 種別 | 貸事務所(物件番号:43955) |
|---|---|
| 物件名 | 中博ビル(ナカヒロ) |
| 住所 | 大阪市中央区博労町2-4-11 |
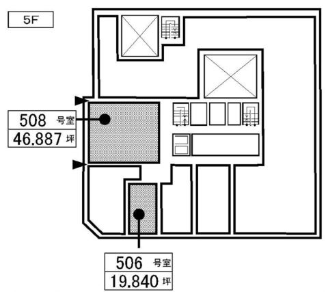
| 所在階 | 5階部分8号室 その他、貸室 |
| 契約面積 | 46.88 坪・ 154.98 ㎡ |
| 賃料 | 総額
468,800 円 (税抜)・坪単価
10,000 円/坪 (税抜) 総額 515,680 円(税含む) |
| 共益費 | 総額 140,640 円 (税抜)・坪単価 3,000 円/坪 (税抜) 総額 154,704 円 (税含む) |
| 月額合計 | 総額 609,510 円(税抜)・坪単価 13,001 円(税抜) 総額 670,461 円 (税含む) |
| 保証金 | 相談 |
| 解約引 | 1年未30% 1年以2年未20% 2年以5年未15% 5年以10% |
| 最寄駅 |
堺筋線 『
長堀橋 』
5 分
御堂筋線 『 心斎橋 』 10 分 |
| 構造 | 鉄骨鉄筋コンクリート造 7階建 /地下 1 階 |
| 築年数 | 1969/4 (リニューアル: 耐震済 ) |
| 設備
|
|
| エレベーター | 2基 |
営業マンの一言 2005年外壁リニューアル角ビル、格調の在る賃貸オフィスビルです。 |
|

※取引態様:仲介
※上記、金額は募集条件です。 条件交渉など、詳細についてはお問合せ下さい。
※広告作成中に契約済みの場合はご容赦下さい。
※図面等現況が相違する場合は現況優先にてご容赦下さい。
中博ビル(ナカヒロ)の所在地周辺
中博ビル(ナカヒロ) その他の部屋情報
物件を再検索する
中博ビル(ナカヒロ) 関連物件
中博ビル(ナカヒロ) 近隣のよく似た坪数の貸事務所
-
堺筋トラストビル
大阪市中央区博労町1
堺筋線「長堀橋」徒歩3分
42.0坪 -
Ruby-cell TOWER(旧:UK長堀ビル)
大阪市中央区島之内1
堺筋線「長堀橋」徒歩5分
43.86坪 -
エイチ・ツーオー第8ビル
大阪市中央区島之内1
堺筋線「長堀橋」徒歩1分
41.0坪 -
堺筋山忠ビル
大阪市中央区島之内1
堺筋線「長堀橋」徒歩1分
45.0坪 -
第一住建東心斎橋ビル
大阪市中央区東心斎橋1
堺筋線「長堀橋」徒歩1分
48.44坪 -
大日南船場ビル(旧 TU南船場ビル)
大阪市中央区南船場1
堺筋線「長堀橋」徒歩3分
41.71坪 -
南船場M21ビル
大阪市中央区南船場1
堺筋線「長堀橋」徒歩3分
46.14坪 -
アイカビル
大阪市中央区南船場1
堺筋線「長堀橋」徒歩4分
43.48坪 -
大阪岡本ビル
大阪市中央区南船場1
堺筋線「長堀橋」徒歩2分
49.77坪 -
三邦ホールディングスビル
大阪市中央区南船場2
堺筋線「長堀橋」徒歩3分
42.71坪





中阪 浩之













