中博ビル(ナカヒロ) 2階-No.54948
中博ビル(ナカヒロ) 基本情報
| 種別 | 貸事務所(物件番号:54948) |
|---|---|
| 物件名 | 中博ビル(ナカヒロ) |
| 住所 | 大阪市中央区博労町2-4-11 |
| 所在階 | 2階部分8号室 その他、貸室 |
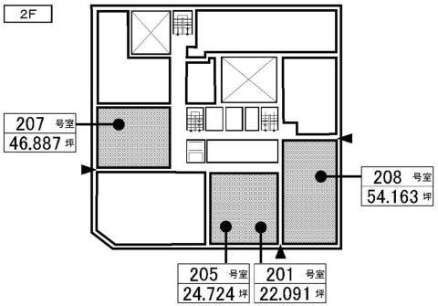
| 契約面積 | 54.16 坪・ 179.05 ㎡ |
| 賃料 | 総額
541,600 円 (税抜)・坪単価
10,000 円/坪 (税抜) 総額 595,760 円(税含む) |
| 共益費 | 総額 162,480 円 (税抜)・坪単価 3,000 円/坪 (税抜) 総額 178,728 円 (税含む) |
| 月額合計 | 総額 704,110 円(税抜)・坪単価 13,001 円(税抜) 総額 774,521 円 (税含む) |
| 保証金 | 相談 |
| 解約引 | 1年未30% 1年以2年未20% 2年以5年未15% 5年以10% |
| 最寄駅 |
堺筋線 『
長堀橋 』
5 分
御堂筋線 『 心斎橋 』 10 分 |
| 構造 | 鉄骨鉄筋コンクリート造 7階建 /地下 1 階 |
| 築年数 | 1969/4 (リニューアル: 2005年 ) |
| 設備
|
|
| エレベーター | 2基 |
営業マンの一言 2005年外壁リニューアル角ビル、格調の在る賃貸オフィスビルです。 |
|

※取引態様:仲介
※上記、金額は募集条件です。 条件交渉など、詳細についてはお問合せ下さい。
※広告作成中に契約済みの場合はご容赦下さい。
※図面等現況が相違する場合は現況優先にてご容赦下さい。
中博ビル(ナカヒロ)の所在地周辺
ストリートビューを表示▼
中博ビル(ナカヒロ) その他の部屋情報
物件を再検索する
中博ビル(ナカヒロ) 関連物件
中博ビル(ナカヒロ) 近隣のよく似た坪数の貸事務所
-
長堀橋第25松屋ビル
大阪市中央区島之内1
堺筋線「長堀橋」徒歩1分
51.68坪 -
ブルーク長堀橋ビル
大阪市中央区南船場1
堺筋線「長堀橋」徒歩5分
57.67坪 -
長堀安田ビル
大阪市中央区南船場1
堺筋線「長堀橋」徒歩1分
56.3坪 -
堺筋ベストビル
大阪市中央区南船場1
堺筋線「長堀橋」徒歩2分
59.65坪 -
パールビル
大阪市中央区南船場1
堺筋線「長堀橋」徒歩1分
59.31坪 -
HSK南船場ビル
大阪市中央区南船場2
堺筋線「長堀橋」徒歩3分
52.71坪 -
シマノ・住友生命ビル
大阪市中央区南船場2
堺筋線「長堀橋」徒歩4分
59.12坪 -
ダイゼンビル
大阪市中央区南船場2
堺筋線「長堀橋」徒歩2分
53.62坪





中阪 浩之











