シルバービル(旧、第一シルバービル) 3階-No.44037
中阪 浩之ナカサカ ヒロユキ
シルバービル(旧、第一シルバービル)の豆知識
「第1シルバービル」は、大阪市中央区安土町2丁目にございます賃貸事務所。
大阪ビジネス中心地・本町のど真ん中に位置する、6階建てオフィスビル。
1967年竣工と、築40年以上になりますが、2012年にリニューアル。
フットワーク良好、銀行やコンビニ、飲食店が多くある抜群のロケーションながら、賃貸条件はリーズナブルと、コストパフォーマンスの高いオフィス。
また場所柄、大型ビルが多い中、10坪前後の貸室が中心ですので、個人様の事務所や少人数の企業オフィス、営業所にオススメの大阪賃貸物件です。
大阪メトロ御堂筋線の「本町駅」1番出入り口より徒歩2分。
中央線や堺筋線からも近く、アクセスの良い大阪ビジネス拠点です。
シルバービル(旧、第一シルバービル) 基本情報
| 種別 | 事務所(物件番号:44037) |
|---|---|
| 物件名 | シルバービル(旧、第一シルバービル) |
| 住所 | 大阪市中央区安土町3-2-3 |
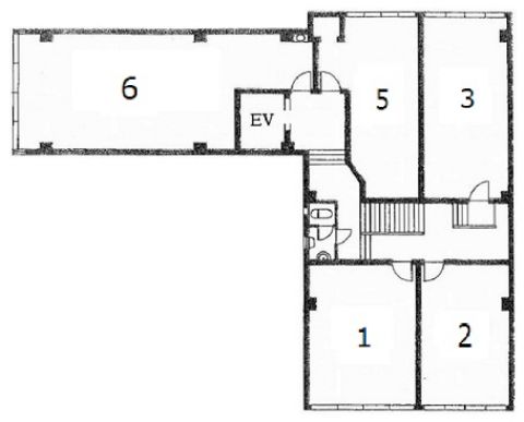
| 所在階 | 3階部分2号室 その他、貸室 |
| 契約面積 | 9.0 坪・ 29.76 ㎡ |
| 賃料 | 総額
688,500 円 (税抜)・坪単価
76,500 円/坪 (税抜) 総額 757,350 円(税含む) |
| 共益費 | 総額 賃料に含む (税抜)・坪単価 賃料に含む (税抜) 総額 賃料に含む (税含む) |
| 月額合計 | 総額 688,500 円(税抜)・坪単価 76,500 円(税抜) 総額 757,350 円 (税含む) |
| 保証金 | 無し |
| 礼金 | 2ヶ月 |
| 費用備考 | 賃貸保証加入要/その他諸費用あり |
| 最寄駅 |
御堂筋線 『
本町 』
2 分
堺筋線 『 堺筋本町 』 5 分 御堂筋線 『 淀屋橋 』 8 分 |
| 構造 | 鉄筋コンクリート造 6階建 |
| 築年数 | 1956/6 (リニューアル: 2012/01 ) |
| 設備
|
|
| エレベーター | 1基 9人乗 |
営業マンの一言 大阪本町のリーズナブル貸しオフィスビルは少し古いイメージは有りますが管理が良く格安オフィスです。御堂筋本町エリアのコンパクトな貸事務所ビルです。 |
|
| 備考 | レトロ(築古) |

※取引態様:仲介
※上記、金額は募集条件です。 条件交渉など、詳細についてはお問合せ下さい。
※広告作成中に契約済みの場合はご容赦下さい。
※図面等現況が相違する場合は現況優先にてご容赦下さい。
シルバービル(旧、第一シルバービル)の所在地周辺
シルバービル(旧、第一シルバービル) その他の部屋情報
物件を再検索する
シルバービル(旧、第一シルバービル) 関連物件
シルバービル(旧、第一シルバービル) 近隣のよく似た坪数の貸事務所
-
七福ビル(淡路町七福ビル)
大阪市中央区淡路町3
御堂筋線「本町」徒歩5分
7.3坪 -
トーア紡第2ビル(トーア紡第二ビル)
大阪市中央区淡路町3
御堂筋線「本町」徒歩5分
9.88坪 -
ドリーム瓦町ビル
大阪市中央区瓦町2
御堂筋線「本町」徒歩5分
9.22坪 -
フカキ瓦町ビル
大阪市中央区瓦町3
御堂筋線「本町」徒歩3分
8.5坪 -
マスザキヤ瓦町ビル
大阪市中央区瓦町4
御堂筋線「本町」徒歩4分
5.99坪 -
RE-017
大阪市中央区北久宝寺町2
御堂筋線「本町」徒歩7分
8.06坪 -
本町アーバンライフ
大阪市中央区北久宝寺町4
御堂筋線「本町」徒歩4分
8.63坪 -
丸忠第1ビル
大阪市中央区久太郎町3
御堂筋線「本町」徒歩1分
8.0坪 -
谷口悦第2ビル
大阪市中央区久太郎町3
御堂筋線「本町」徒歩1分
9.0坪 -
大阪センタービル
大阪市中央区久太郎町4
御堂筋線「本町」徒歩0分
9.66坪






















